EasyManua.ls Logo

Bartscher 116.402 - Page 70

Bartscher 116.402
Print Icon
To Next Page IconTo Next Page
To Next Page IconTo Next Page
To Previous Page IconTo Previous Page
To Previous Page IconTo Previous Page
Loading...
- 69 -
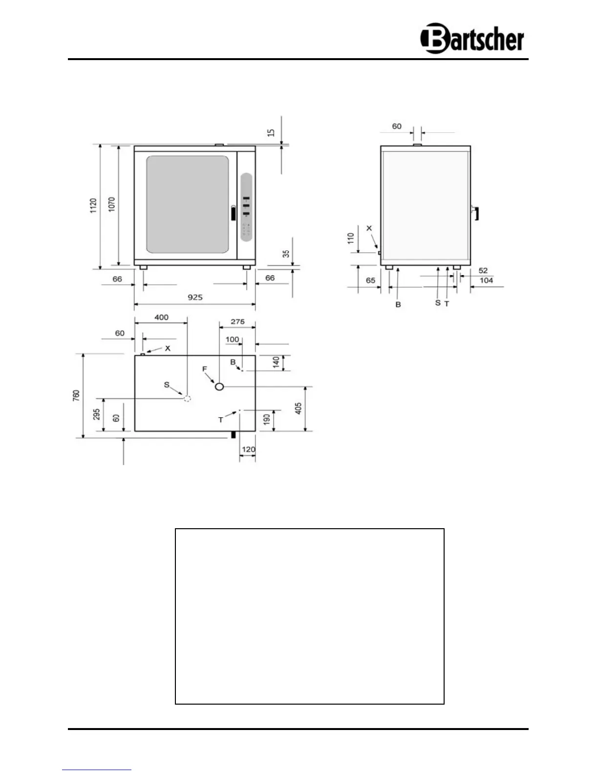
Cuiseur vapeur 10 x 1/1 GN
C
uiseur vapeur
10 x 1/1 GN, 10 x 600x400
Puissance: 12,0 kW / 3 NAC 380-400 V
Dimensions: larg. 925 x prof. 760 x haut. 1120 mm
Distance entre plaques: 80 mm
Poids: 110 kg
de l'art.: 116.410
Explications:
X = arrivée d'eau 3/4“
F = décharge de vapeur 60 mm
B = arrivée de courant
T = thermostat de sécurité
S = vidange de l'eau
Dimensions en mm

Table of Contents

Related product manuals