EasyManua.ls Logo

Baumatic BDWI640 - Installation Stages; Preparing and Connecting the Furniture Door

Baumatic BDWI640
48 pages
Print Icon
To Next Page IconTo Next Page
To Next Page IconTo Next Page
To Previous Page IconTo Previous Page
To Previous Page IconTo Previous Page
Loading...
o The aperture that your dishwasher needs to be installed into
should resemble the one shown in the drawings on the previous
page.
o There should be less than a 5 mm gap between the top of the
dishwasher and the underneath of the worktop. The height of the
aperture required will vary between 820 – 870 mm depending on
the height of the adjustable feet.
Installation stages
1. Preparing and connecting the furniture door.
2. Adjusting the tension of the door spring.
3. Connecting to the mains water supply
4. Connecting to the water outlet
5. Connecting to the power supply
6. Applying the condensation strip
7. Positioning the dishwasher
8. Levelling the dishwasher
9. Securing the dishwasher
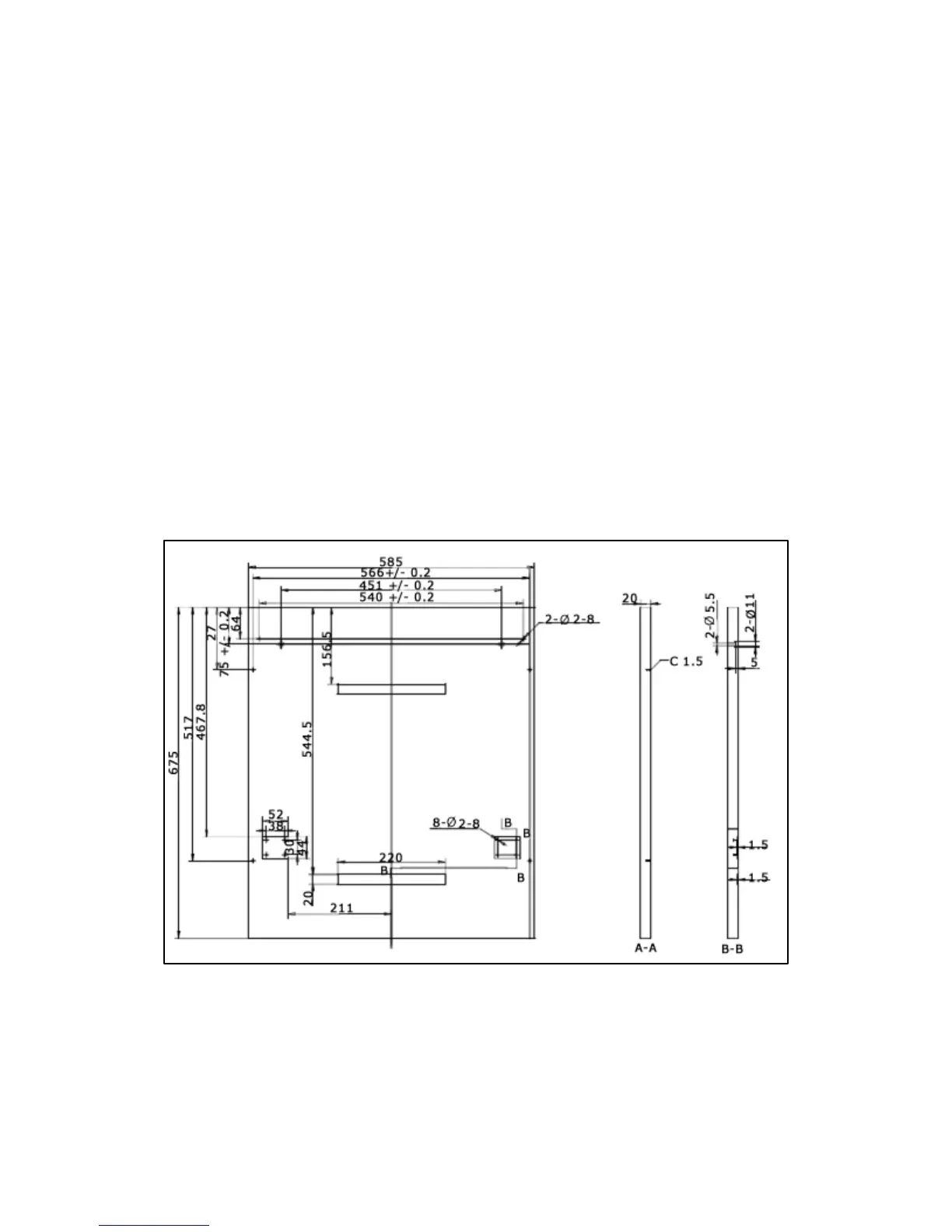
Preparing and connecting the furniture door
o IMPORTANT: The furniture door is not supplied with the
appliance. You should purchase one to match with the rest of
your kitchen cabinets.
o The maximum weight of the furniture door should be 5.5
kilograms. The maximum thickness of the furniture door
should be 15 mm.
36

Related product manuals