EasyManua.ls Logo

BEKA BA304G - Separately Powering the Backlight; Alarms

BEKA BA304G
39 pages
Print Icon
To Next Page IconTo Next Page
To Next Page IconTo Next Page
To Previous Page IconTo Previous Page
To Previous Page IconTo Previous Page
Loading...
21
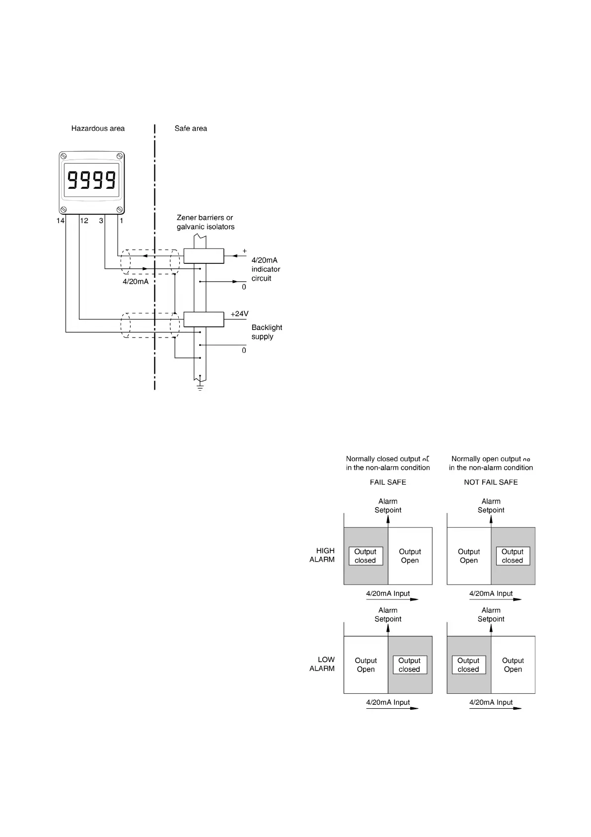
9.2.2 Separately powering the backlight
The optional backlight may also be powered from a
separate safe area power supply via an
intrinsically safe interface as shown in Fig 12.
Fig 12 Backlight separately powered
When separately powered the backlight draws a
constant current providing the supply is equal to or
greater than the minimum specified voltage.
Below this supply voltage the backlight continues
to function but with reduced brilliance.
Current Minimum voltage
All models 34.7mA 11V
Any certified Zener barrier or galvanic isolator may
be used, providing the output parameters do not
exceed:
Uo = 30V dc
Io = 200mA
Po = 0.84W
The internal capacitance Ci between terminals 12
& 14 should be subtracted from Co of the
intrinsically safe interface powering the backlight to
determine the maximum permissible cable
capacitance.
Ci = 3.3nF
Ii = 0.008mH (0.01mH)
9.3 Alarms
CAUTION
These alarms outputs should not be used
for critical safety applications such as an
emergency shut down system.
Both models can be supplied with factory fitted
dual solid state, single pole alarm outputs. Each
alarm output may be independently configured as
a high or low alarm with a normally open or
normally closed output in the non-alarm condition.
When the 4/20mA current powering the indicator is
removed both alarm outputs will open irrespective
of configuration. The open circuit condition should
therefore be chosen as the alarm condition when
designing an alarm system. Fig 13 illustrates the
conditions available and shows which are fail safe.
When an alarm occurs an alarm annunciator on
the indicator front panel is activated and if required
the numerical display can alternate between the
measured value and the alarm channel
identification ALr1 or ALr2.
CAUTION
The alarms are activated by the indicators
numerical display. Use of the Tare
Function tArE will change the numerical
display, the alarms will continue to
function at the original displayed value,
but this will correspond to a different input
current.
Fig 13 Alarm outputs
Configurable functions for each alarm include
adjustable setpoint, hysteresis, alarm delay and
alarm accept.

Table of Contents

Related product manuals