EasyManua.ls Logo

Belling IH60 - Page 18

Belling IH60
24 pages
Print Icon
To Next Page IconTo Next Page
To Next Page IconTo Next Page
To Previous Page IconTo Previous Page
To Previous Page IconTo Previous Page
Loading...
INSTALLATION INSTRUCTIONS - INDUCTION
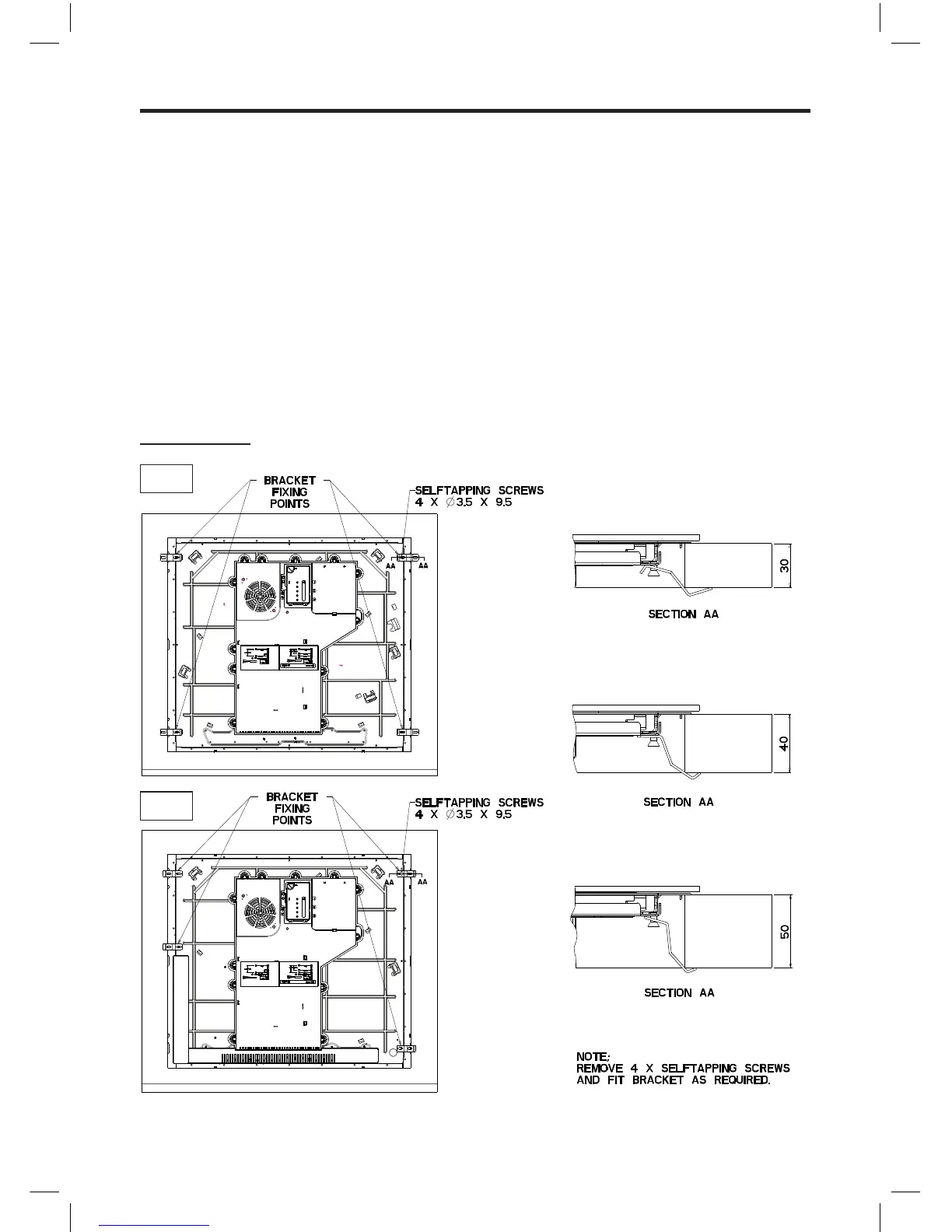
Fixing Brackets
Installation advice - cabinetry
Dealing with sides, cross-rails and
back-panels in cabinetry
Depending on the cabinets, the worktop
thickness and the hob positioning, it is
possible for the hob base and/or the
clamp brackets to interfere with parts of
the cabinet.
Cut away cabinetry and use appropriate
fixing brackets for your installation.
FINAL ASSEMBLY
Type 1
Type 2

Related product manuals