EasyManua.ls Logo

BenQ RP550+ - Dimensions

BenQ RP550+
70 pages
Print Icon
To Next Page IconTo Next Page
To Next Page IconTo Next Page
To Previous Page IconTo Previous Page
To Previous Page IconTo Previous Page
Loading...
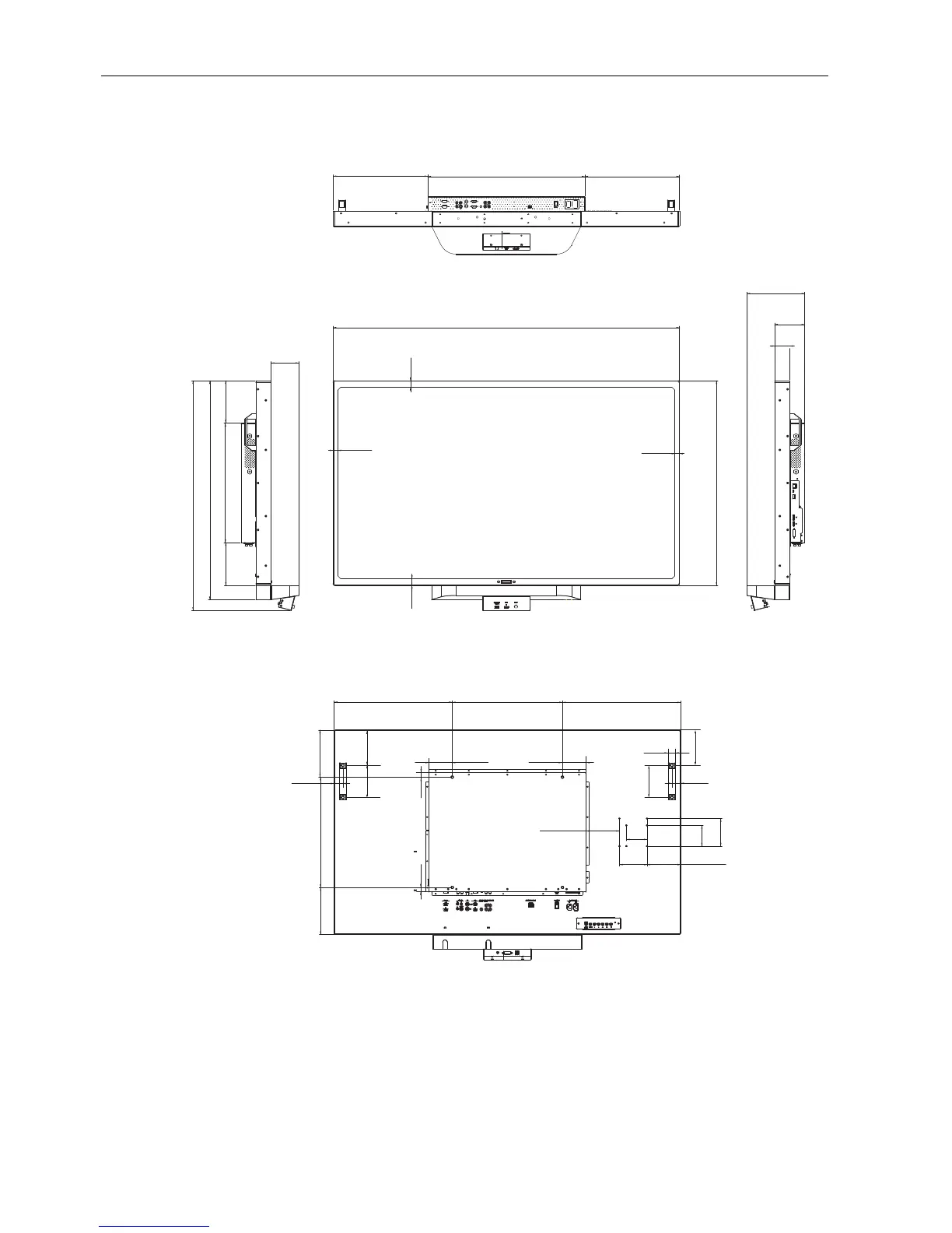
Product information60
Dimensions
• RP550+
Unit: mm
343.9 569.8 343.9
1257.6
24
17.3
17.3
24
742
210
109
55
101
833.43
794.68
433157.4 152.8
428.8 400 428.8
171400171
121.95
121.95
75
100
75
100
127.85
117
17
31.7
84.9
84.9
16
26
127.85
117
31.7

Related product manuals