EasyManua.ls Logo

BIRO 3334SS - Page 34

BIRO 3334SS
52 pages
Print Icon
To Next Page IconTo Next Page
To Next Page IconTo Next Page
To Previous Page IconTo Previous Page
To Previous Page IconTo Previous Page
Loading...
31
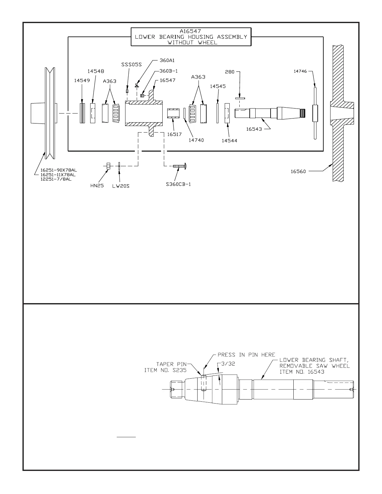
Item No. 16543 - Lower Shaft for Removable Wheel
The Model 3334 Lower Removable Wheel has been revised to include a keyway in the bore. Also
an anti-rotation pin is now pressed into the lower shaft to prevent any inadvertent “spinning” of the
wheel on the shaft.
NOTE - If the saw in which a new shaft is
to be installed has a groove (keyway) in the
bore of the lower wheel, press the taper pin
(provided “loose”)into the hole in the side of
the shaft (see sketch).
If there is no groove (keyway) in the bore of the lower wheel, discard
the taper pin and use the shaft without the pin.
14740
14746
16251-90X78AL
16517
16543
16547
16560
280
360A1
16251-11X78AL
360B-1
Set screw, ½-13, SS
A16547
A363
LW20S
S360CB-1
SSS05S
12251AL-7/8DBL
14544
14548
14549
HN25
14545
Lower bearing housing assembly,
Lower bearing cup/cone assembly
Hex nut, ⅜-16, carbon-plated
Lock washer, ⅜ heavy
Carriage bolt, ⅜-16 x 1¼
Set screw, 10-24 x ⅜
Pulley, 9 x ⅞ double-V
Grease seal
Retaining ring, internal
Grease seal
Lower bearing housing cap
Retaining ring - external
T-handle lock, removable lower wheel
Pulley, 11.4 x ⅞ aluminum
Pulley, 9 x ⅞ aluminum
Inner race spacer
Lower shaft, removable wheel
Lower bearing housing
Lower removable wheel, 16”, 6 spoke
Lower shaft motor key
Grease tting - angled
DescriptionItem No. DescriptionItem No.
w/o wheel

Related product manuals