EasyManua.ls Logo

Bitzer 2DES-3.F1Y - Page 17

Bitzer 2DES-3.F1Y
51 pages
Go to English
Print Icon
To Next Page IconTo Next Page
To Next Page IconTo Next Page
To Previous Page IconTo Previous Page
To Previous Page IconTo Previous Page
Loading...
KW-210-2 17
S1
01
F3 4A
L1
L2
L3
N
PE
F1
Q1
1
0
K1
13
1
2
3
M3~
3
4
5
R7, Option
4321 876
5
13
1211
109
14
15 16
17
18 19
R1..6
3~
3~
1W1
1V1
1U1
L1L2 L3
B2
S2
B1
K1
13
K2T
18
K4T
5 s
K8
S3
1
2
3
1
2
3
4
5
6
7
8
9
X101
X102
4 .. 20 mA
0 .. 10 V
K8
9
S4 B3
H1 H2
K1
H8 H3
Y2
9
K2T
120 s
R8
F5
P>
F6
P<
K8
9
K8
9
K8
9
K1
13
F12 4A
N
L
11
12 14
SE-B1
B1
B2
1
2
Delta-PII
L1.1
L1.2
N
2/2/2/9
15
4/14/17
18/19
15/16
N1
K4T
8
M1
7
8
9
0 V
PE
K4T
8
grau
grey/gris
braun
brown
marron
violett
violet
violet
rosa
pink
rosé
orange blau
blue
bleu
K8
9
Option
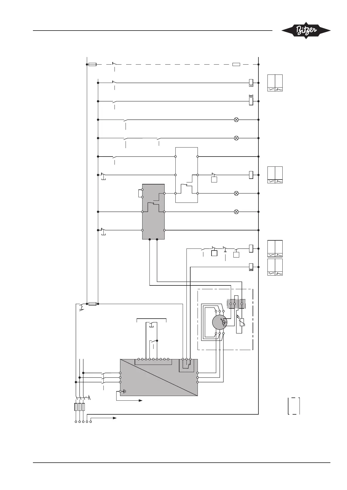
Details zum Anschluss siehe Innenseite des Anschlusskastens.
Details concerning connections see inside the terminal box.
Détails sur le raccordement voir intéreur de la boîte de raccordement.
10 V
Abb.1: Prinzipschaltbild VARISPEED .F1

Other manuals for Bitzer 2DES-3.F1Y

Related product manuals