EasyManua.ls Logo

Booster NBO - Flow Sheet

Booster NBO
36 pages
Print Icon
To Next Page IconTo Next Page
To Next Page IconTo Next Page
To Previous Page IconTo Previous Page
To Previous Page IconTo Previous Page
Loading...
9
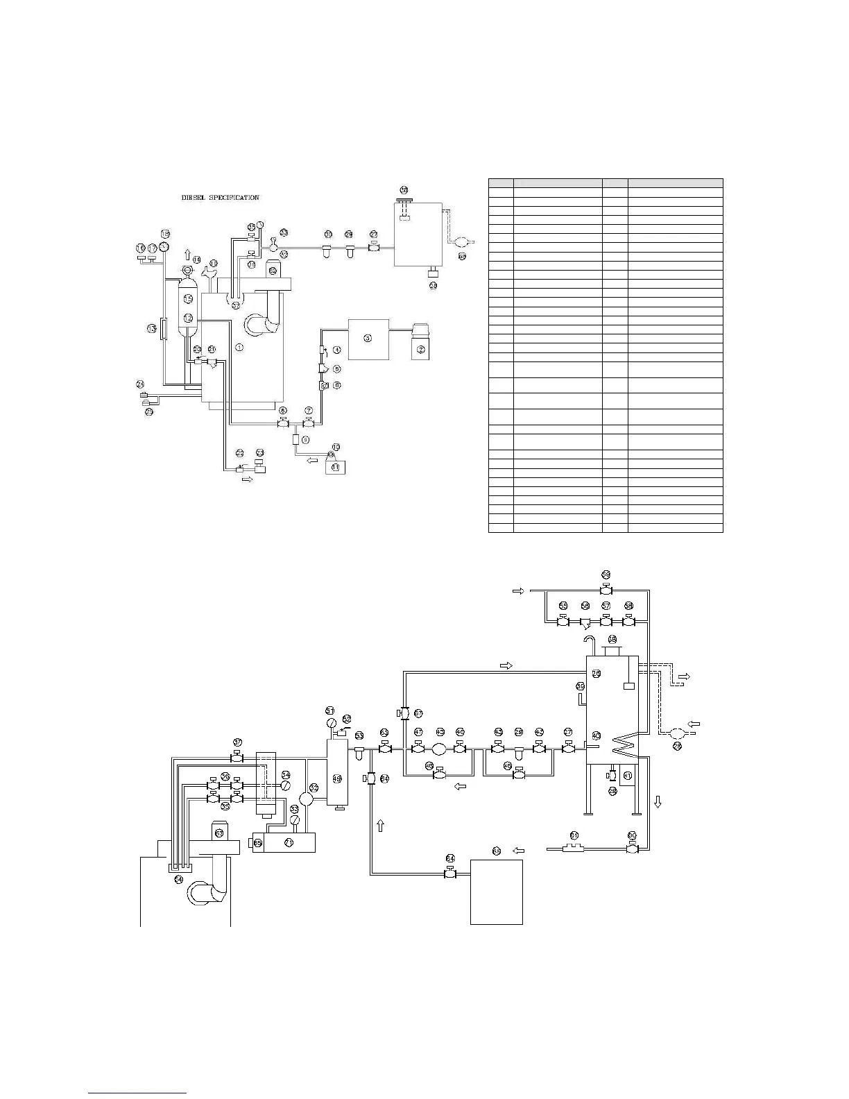
(2) Flow Sheet
Light oil specification
NO
NAME NO NAME
1 Boiler 35 2
nd
oil solenoid valve
2 Softner 36 1
st
oil solenoid valve
3 Feed water tank 37 Return solenoid valve
4 Feed water valve 38 Float switch
5 Feed water strainer 39 Oil temperature gauge
6 Feed water pump 40 Plug heater
7 Swing check 41 Control box
8 Lift check 42 Feed oil valve
9 Feed chemical check 43 Feed oil valve
10 Feed chemical pump 44 Akastart(Burner temp. sensor)
11 Feed chemical tank 45 Circulation pump
12 Steam separator 46 Feed oil valve
13 Water level gauge 47 Feed oil valve
14 Main steam valve 48 By-pass valve
15 Air extraction valve 49 Oil water separator
16 Low pressure gauge 50 Blowing-off valve
17 High pressure gauge 51 Pressure gauge
18 Steam pressure gauge 52 Air extraction valve
19 Safety valve 53 Oil strainer
20
Concentration blowing-off
valve
54 Oil nozzle
21
Concentration blowing-off
strainer
55 Steam control valve
22
Concentration blowing-off
valve
56 Steam strainer
23
Concentration blowing-off
solenoid valve
57 Steam solenoid valve
24 Blowing-off valve 58 Steam valve
25
Sampling valve of the tube
water
59 Steam By-pass valve
26 Oil tank 60 Steam blowing-off valve
27 Feed oil valve 61 Steam trap
28 Oil tank blowing-off valve 62 Blower motor
29 Oil strainer 63 Feed oil valve
30 Oil strainer 64 Feed oil valve
31 Oil heater 65 Oil heater sensor
32 Oil pump 66 Diesel tank
33 Pressure gauge 67 Return pressure control valve
34 Oil temperature gauge 68 Pressurizing pump
Heavy oil specification

Table of Contents