EasyManua.ls Logo

Bosch Benchmark HBL8442UC - Double Oven 27 Flush Mount Installation; Dimensions for 30 Single Oven Units; Single Oven 30 Traditional Installation; Cabinet and Undercounter

Bosch Benchmark HBL8442UC
64 pages
Print Icon
To Next Page IconTo Next Page
To Next Page IconTo Next Page
To Previous Page IconTo Previous Page
To Previous Page IconTo Previous Page
Loading...
English 16
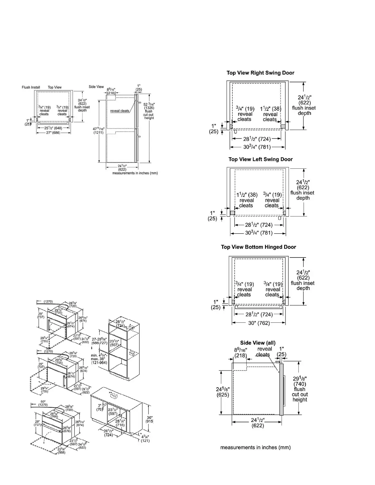
Double Oven 27” Flush Mount
Installation
Flush installation requires two side cleats to be attached
inside the cabinet frame, recessed from the front.
Dimensions for 30” Single
Oven Units
The cabinet opening must be plumb and the base must be
flat and level and capable of supporting a weight of at least
212 lbs (96 kg).
When installing a side hinge oven, leave at least 10” (254
mm
) clearance to allow the door to open.
Single Oven 30” Traditional Installation,
Cabinet and Undercounter
Single Oven 30” Flush Mount
Installations
Flush installation requires two side cleats to be attached
inside the cabinet frame, recessed from the front.

Table of Contents

Related product manuals