EasyManua.ls Logo

Bosch Benchmark HBL8442UC - Dimensions pour les Fours Doubles de 30 Po (76 CM); Installation Encastrée Dun Four Double de; Installation Traditionnelle Dun Four Double de

Bosch Benchmark HBL8442UC
64 pages
Print Icon
To Next Page IconTo Next Page
To Next Page IconTo Next Page
To Previous Page IconTo Previous Page
To Previous Page IconTo Previous Page
Loading...
Français 17
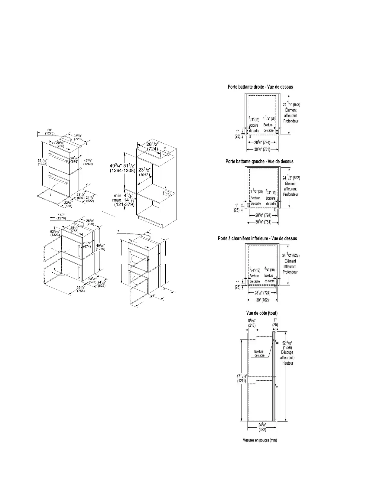
Dimensions pour les fours
doubles de 30 po (76 cm)
L'ouverture de l'armoire doit être d'aplomb et le socle doit
être à plat et de niveau et capable de supporter un poids
d'au moins 390 lb (177 kg).
Installation traditionnelle d'un four
double de 30 po (76 cm)
Installation encastrée d'un four double
de 30 po (76 cm)
L'installation encastrée d'un four double de 30 po (76 cm)
nécessite deux tasseaux latéraux posés à l'intérieur du
cadre de l'armoire, en retrait de la face avant.
29/"
(755)
3
4
52/"
(1323)
1
16
49/"
(1260)
5
8
50"
(1270)
28/"
(720)
3
8
24/"
(622)
1
2
29/"
(755)
3
4
23/"
(597)
1
2
26/"
(674)
1
2

Table of Contents

Related product manuals