EasyManua.ls Logo

Bosch Benchmark HBL8442UC - 30 Po (76 CM), en Armoire et Sous Comptoir; Dimensions pour les Fours Simples de 30 Po; Installation Encastrée Dun Four Double de 27 Po (69 CM); Installation Traditionnelle Dun Four Simple de

Bosch Benchmark HBL8442UC
64 pages
Print Icon
To Next Page IconTo Next Page
To Next Page IconTo Next Page
To Previous Page IconTo Previous Page
To Previous Page IconTo Previous Page
Loading...
Français 16
Installation encastrée d'un four double
de 27 po (69 cm)
L'installation encastrée nécessite deux tasseaux latéraux
posés à l'intérieur du cadre de l'armoire, en retrait de la
face avant.
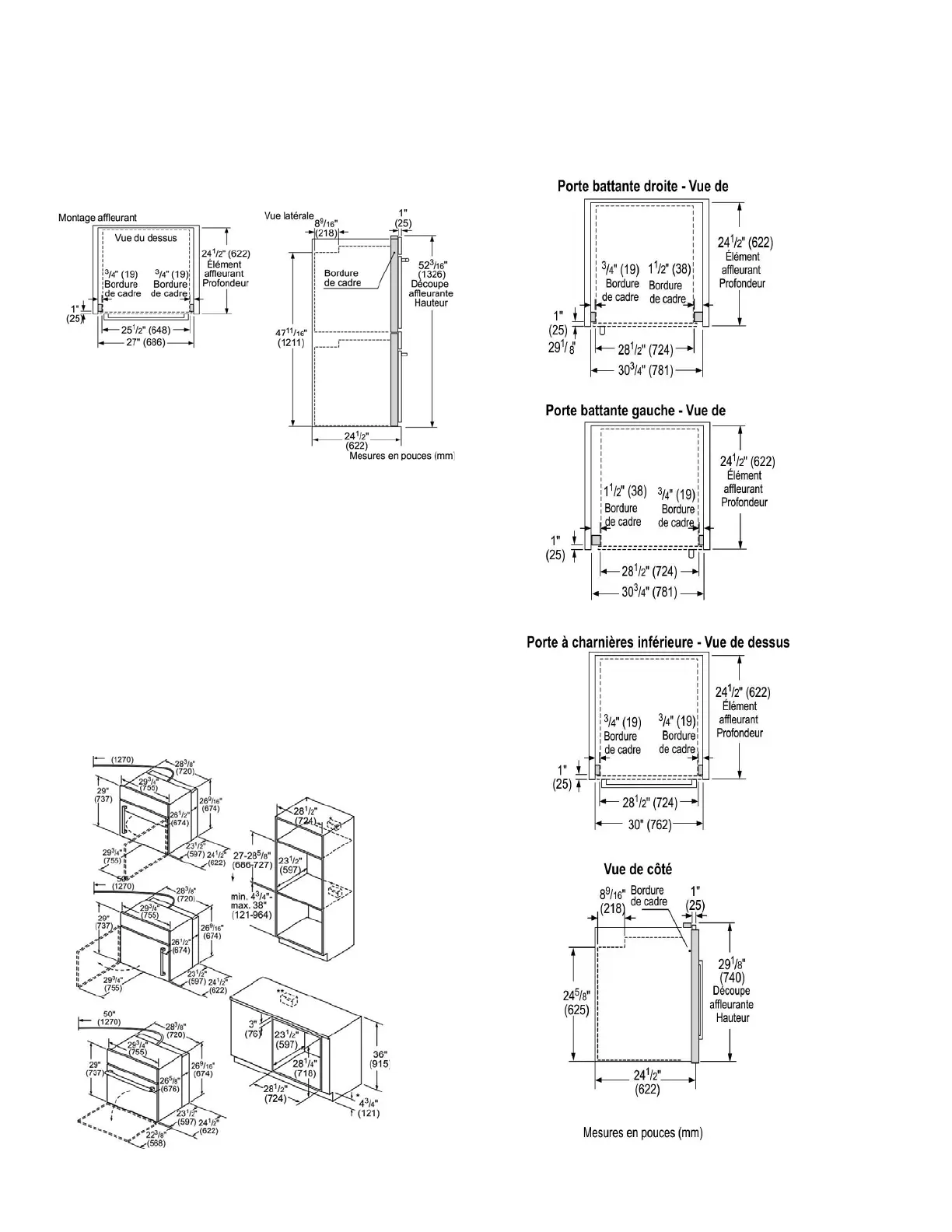
Dimensions pour les fours simples de
30 po (76 cm)
L'ouverture de l'armoire doit être d'aplomb et le socle doit être à
plat et de niveau et capable de supporter un poids d'au moins
212 lb (96 kg).
Lors de l'installation d'un four à charnières latérales, laisser au
moins 10 po (254 mm) de dégagement pour permettre à la porte
de s'ouvrir.
Installation traditionnelle d'un four simple de
30 po (76 cm), En armoire et Sous comptoir
Installations encastrées d'un four
simple de 30 po (76 cm)
L'installation encastrée nécessite deux tasseaux latéraux posés à
l'intérieur du cadre de l'armoire, en retrait de la face avant.

Table of Contents

Related product manuals