EasyManua.ls Logo

Bosch WH27 - Dimensiones

Bosch WH27
80 pages
Print Icon
To Next Page IconTo Next Page
To Next Page IconTo Next Page
To Previous Page IconTo Previous Page
To Previous Page IconTo Previous Page
Loading...
Información sobre el calentador | 33US
6 720 646 951 (2011/09)Copyright
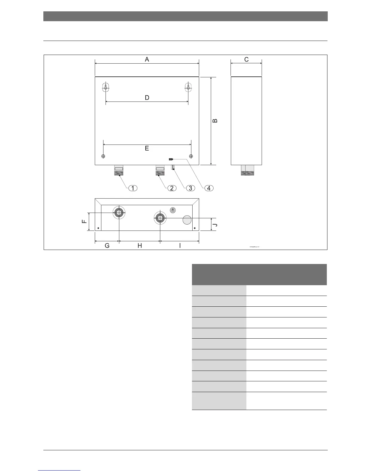
2.6 Dimensiones
Fig. 2
1 Salida de ¾
"
NPT (agua caliente)
2 Entrada de ¾
"
NPT (agua fría)
3 Mando de temperatura
4 Diodo Emisor de Luz (LED)
Dimensiones
(pulgadas) WH17 / WH27
A (Ancho) 15 ¼ "
B (Altura) 12 ½ "
C (Profundidad) 4 ½ "
D 12
5
/
8
"
E 12
5
/
8
"
F 2 ½ "
G 3 ½ "
H 6
1
/
8
"
I 5 ¾ "
J 1 ¾ "
Conexiones de
Agua
¾ "
Tab. 4 Dimensiones

Table of Contents

Other manuals for Bosch WH27

Related product manuals