EasyManua.ls Logo

BÖWE P15 - Operation and Settings

Default Icon
72 pages
Print Icon
To Next Page IconTo Next Page
To Next Page IconTo Next Page
To Previous Page IconTo Previous Page
To Previous Page IconTo Previous Page
Loading...
21
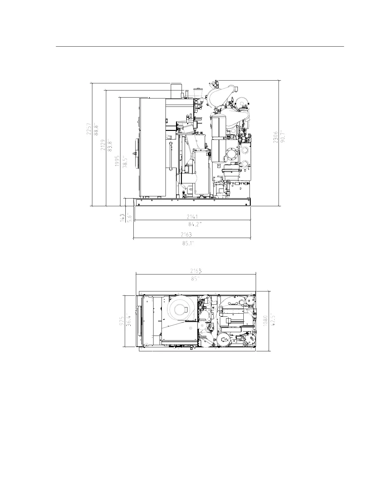
P12-P15-P18
5 Installation 5
Slimline P12-P15
707770-08-0
* only by second filter
707770-07-A
*

Other manuals for BÖWE P15

Related product manuals