EasyManua.ls Logo

Bryant 538PR - Page 16

Bryant 538PR
64 pages
Print Icon
To Next Page IconTo Next Page
To Next Page IconTo Next Page
To Previous Page IconTo Previous Page
To Previous Page IconTo Previous Page
Loading...
16
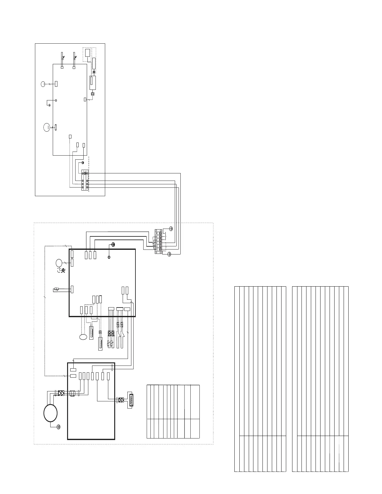
INDOOR WIRING DIAGRAM
6
52207(03(5$785(6(1625
3,3( 7(03(5$785( 6(1625
6:,1*02725
M
CN5
YELLOW
RED

,1)$1
M
5
CN4
N
CN
1
1
CN16
&1
&1
L-IN
CN2
P_1
BLUE(BLACK)
INDOOR UNIT
OUTDOOR UNIT
JX1
Y/G
L1
L2
S
',63/$<%2$5'
&1$
8(7)

&1
Wire Contoller
OPTIONAL
Wi-Fi
Contoller
OPTIONAL
&1
&1
COMP
FM1
DRAOB
NIAM
U
V
W
Y/G
Y/G
L
L-PRO
T3
T4
CODE PART NAME
COMPRESSOR
HEAT
4-WAY VALVE
COMP
H-PRO
L-PRO
LOW PRESSURE SWITCH
HIGH PRESSURE SWITCH
3T
4T
CONDENSER
TEMPERATURE SENSOR
OUTDOOR AMBIENT
TEMPERATURE SENSOR
CRANKCASE HEATING
H-PRO
SV
L
PFC INDUCTOR
Y/G
TP
PT
EXHAUST
TEMPERATURE SENSOR
RED
BLACK
V
U
CN19
CN51
CN55
W
BLACK
DRIVER BOARD
RED
7
7
YEL LO W
BLUE
P-1
Applicable to the units
adopting DC motor only
FM1
OUTDOOR DC FAN
CN53
CN3
CN4
CN10
CN40
CN22
CN44
CN8
CN9
CN7
2
NC
1
N
C
CN5
CN54
CN52
CN33
CN6
SV
W
AY1
HEAT2
HEAT1
CN12
CN11
BLACK
RED
BLUE
BLUE
BLUE
YEL LO W
RED
BLACK
RED
BLACK
-;,
L2
72,1'22581,7
32:(56833/<
<*
L2
S
L1
/
5('
5('
%/$&.
YELLOW
S
%/$&.
<(//2:
The electric heating
belt of compressor
The electric heating
belt of chassis
Fig. 14 Wiring Diagram Size 30 (208- 230V)
INDOOR UNIT CONTROL BOARD
INPUT or OUTPUT VALUE
L_IN Power Voltage AC 230V
CN11 Power Voltage AC230V
CN16 Rela ti ve to the N te rminal voltag e DC 24V
CN15 Maximum voltageDC5V
CN4 Indoor fan interface,Maximum voltageDC310V
CN5 Stepper motor interface,Maximum voltage between the linesDC12V
P_1 Ground
CN8 Room temperature sensor interface,maximum v oltageDC5V
CN9 Pipe temperature s ensor interface,maximum voltageDC5V
CN10A Display interface,maximum voltage between the linesDC5V
OUTDOOR UNIT CONTROL BOARD
INPUT or OUTPUT VALUE
CN1 CN2 Input: 230V High voltage
S Output: Connection of the high voltage
CN11 CN12 Output: Pulse(0-320V) for DC FAN
CN33 Input:Pin1 (5V) Pin2(0-5V)
CN3 CN22 Output: High voltage for 4-way control
CN4 CN40 Output: 230V High voltage for HEATER1
CN10 CN44 Output: 230V High voltage for HEATER2
CN8 Input:Pin3-4 (5V) Pin2(0V),Pin1,Pin5(0-5V)
CN9 Input:Pin1~3 (0V) Pin2~4(0-5V)
CN51 CN52 Output: Connection of the high voltage
UVW Output: Pulse(0-380V) for compressor

Related product manuals