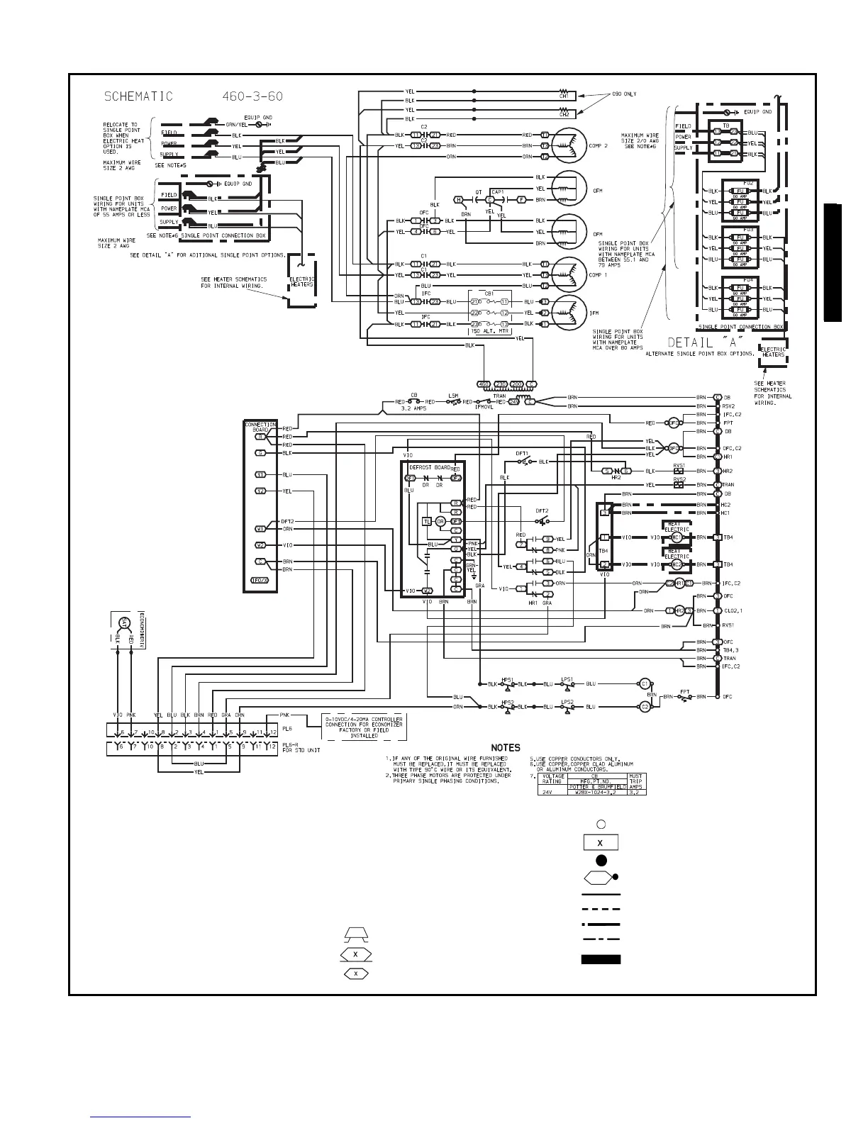
AWG — American Wire Gage
C—Contactor, Compressor
CAP — Capacitor
CB — Circuit Breaker
CH — Crankcase Heater
COMP — Compressor Motor
DB — Defrost Board
DFT — Defrost Thermostat
EQUIP — Equipment
FPT — Freeze Protection Thermostat
GND — Ground
HC — Heater Contactor
HPS — High-Pressure Switch
HR — Heater Relay
IFC — Indoor Fan Contactor
IFM — Indoor Fan Motor
IFMOVL — Indoor Fan Motor Overload
LPS — Low-Pressure Switch
LSM — Limit Switch (Manual Reset)
OFC — Outdoor Fan Contactor
OFM — Outdoor Fan Motor
P—Plug
PL — Plug Assembly
QT — Quadruple Terminal
RSV — Reversing Valve
SAT — Supply-Air Thermostat
TB — Terminal Block
TRAN — Transformer
Field Splice
Marked Wire
Terminal (Marked)
Terminal (Unmarked)
Terminal Block
Splice
Splice (Marked)
Factory Wiring
Field Control Wiring
Field Power Wiring
Accessory or Optional Wiring
To indicate common potential only.
Not to represent wiring.
LEGEND
548F090-120 — 460 v Shown
a50-8052