EasyManua.ls Logo

Bryant 588A - Page 7

Bryant 588A
27 pages
Print Icon
To Next Page IconTo Next Page
To Next Page IconTo Next Page
To Previous Page IconTo Previous Page
To Previous Page IconTo Previous Page
Loading...
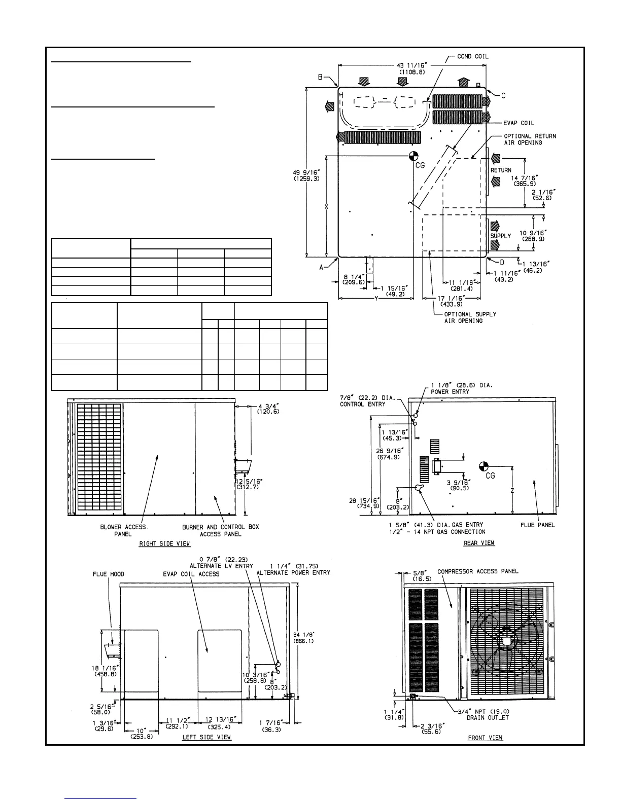
DIMENSIONAL DRAWINGS (cont)
REQ’D CLEARANCES FOR SERVICING. in. (mm)
Duct panel..................................0
Unit top ................................36(914)
Side opposite ducts .........................36(914)
Compressor access .........................36(914)
(Except for NEC requirements)
REQ’D CLEARANCES TO COMBUSTIBLE MATL. in. (mm)
Maximum extension of overhangs .................48(1219)
Unit top ................................14(356)
Duct side of unit ...............................0
Side opposite ducts ..........................9(229)
Bottom of unit ................................0
Flue panel ..............................30(762)
NEC REQ’D CLEARANCES. in. (mm)
Between units, control box side ..................42(1067)
Unit and ungrounded surfaces, control box side ..........36(914)
Unit and block or concrete walls and other grounded
surfaces, control box side .....................42(1067)
LEGEND
CG Center of Gravity
COND Condenser
LV Low Voltage
MAT’L Material
NEC National Electrical Code
REQ’D Required
NOTE: Clearances must be maintained to prevent recirculation of air from
outdoor-fan discharge.
UNIT
CENTER OF GRAVITY (in./mm)
XYZ
588A048080 28.76/731 23.46/596 15.35/390
588A048100/120/140 28.42/722 23.42/595 15.35/390
588A060080 28.36/720 23.27/591 15.35/390
588A060100/120/140 27.95/710 23.23/590 15.35/390
UNIT
ELECTRICAL
CHARACTERISTICS
UNIT
WEIGHT
CORNER WEIGHT
(lb/kg)
lbkgABCD
588A048080
208/230-1-60, 208/230-3-60,
460-3-60
414 188 107/49 83/38 158/72 66/30
588A048100/120/140
208/230-1-60, 208/230-3-60,
460-3-60
426 193 110/50 86/39 159/72 71/32
588A060080
208/230-1-60, 208/230-3-60,
460-3-60
453 206 117/53 93/42 167/76 76/35
588A060100/120/140
208/230-1-60, 208/230-3-60,
460-3-60
465 211 120/55 96/44 167/76 82/37
Unit 588A, Sizes 048,060 Without Base Rail
7

Other manuals for Bryant 588A

Related product manuals