EasyManua.ls Logo

Bryant 588A - Page 8

Bryant 588A
27 pages
Print Icon
To Next Page IconTo Next Page
To Next Page IconTo Next Page
To Previous Page IconTo Previous Page
To Previous Page IconTo Previous Page
Loading...
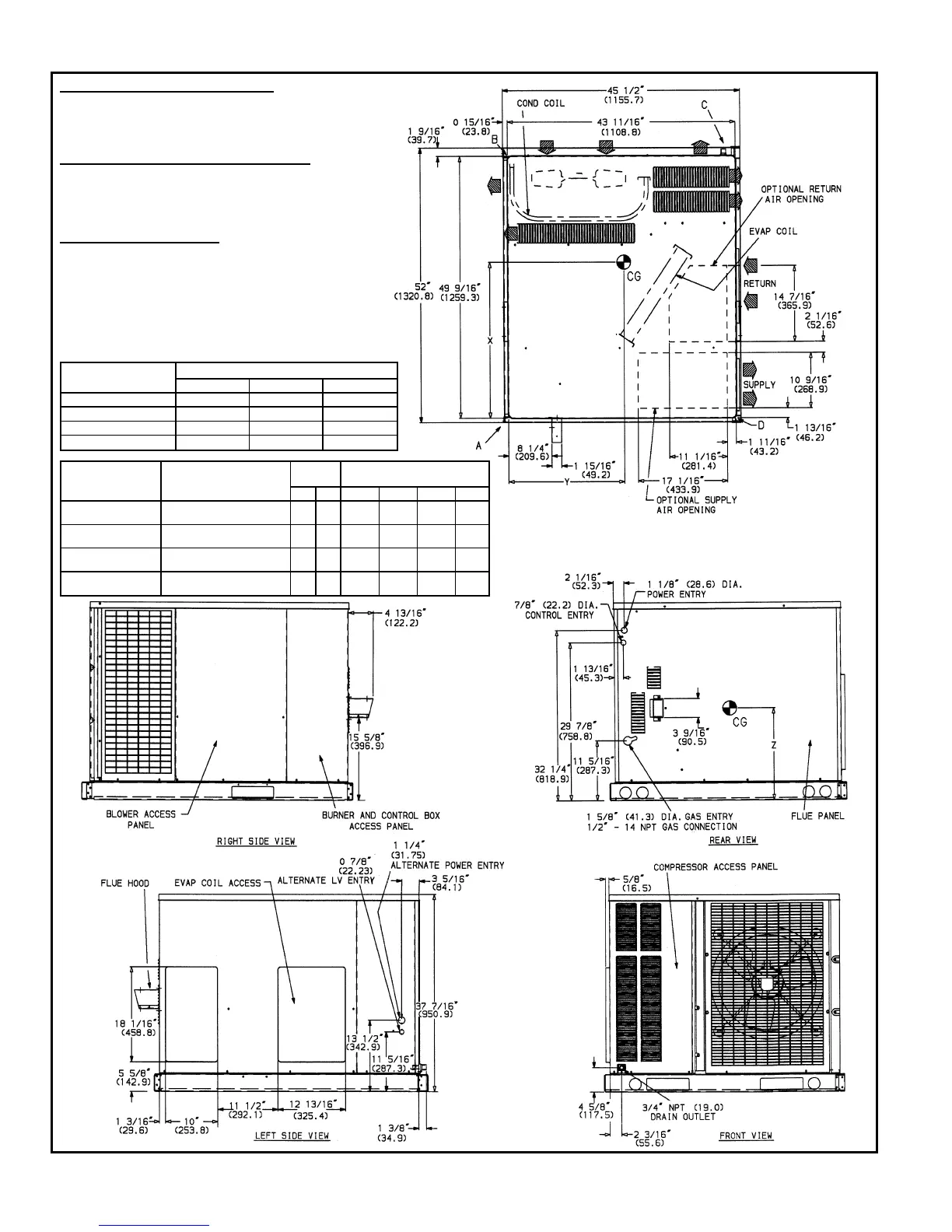
DIMENSIONAL DRAWINGS (cont)
REQ’D CLEARANCES FOR SERVICING. in. (mm)
Duct panel..................................0
Unit top ................................36(914)
Side opposite ducts .........................36(914)
Compressor access .........................36(914)
(Except for NEC requirements)
REQ’D CLEARANCES TO COMBUSTIBLE MATL. in. (mm)
Maximum extension of overhangs .................48(1219)
Unit top ................................14(356)
Duct side of unit ...............................0
Side opposite ducts ..........................9(229)
Bottom of unit ................................0
Flue panel ..............................30(762)
NEC REQ’D CLEARANCES. in. (mm)
Between units, control box side ..................42(1067)
Unit and ungrounded surfaces, control box side ..........36(914)
Unit and block or concrete walls and other grounded
surfaces, control box side .....................42(1067)
LEGEND
CG Center of Gravity
COND Condenser
LV Low Voltage
MAT’L Material
NEC National Electrical Code
REQ’D Required
NOTE: Clearances must be maintained to prevent recirculation of air from
outdoor-fan discharge.
UNIT
CENTER OF GRAVITY (in./mm)
XYZ
588A048080 28.54/724.9 20.00/508 17.66/448.6
588A048100/120/140 28.22/716.8 20.05/509.3 17.66/448.6
588A060080 28.18/715.6 20.19/512.8 17.66/448.6
588A060100/120/140 27.79/705.9 20.23/513.8 17.66/448.6
UNIT
ELECTRICAL
CHARACTERISTICS
UNIT
WEIGHT
CORNER WEIGHT
(lb/kg)
lb kg A B C D
588A048080
208/230-1-60, 208/230-3-60,
460-3-60
438 199 113/51 89/40 164/75 72/33
588A048100/120/140
208/230-1-60, 208/230-3-60,
460-3-60
450 205 116/53 92/42 165/75 77/35
588A060080
208/230-1-60, 208/230-3-60,
460-3-60
477 217 123/56 99/45 173/79 82/37
588A060100/120/140
208/230-1-60, 208/230-3-60,
460-3-60
489 222 126/57 102/46 173/79 88/40
Unit 588A Sizes 048,060 With Optional Base Rail
8

Other manuals for Bryant 588A

Related product manuals