EasyManua.ls Logo

Bryant 915SB - 24- -V Wiring; Alternate Power Supplies; Accessories; Example of Single Stage Furnace Control

Bryant 915SB
78 pages
Print Icon
To Next Page IconTo Next Page
To Next Page IconTo Next Page
To Previous Page IconTo Previous Page
To Previous Page IconTo Previous Page
Loading...
32
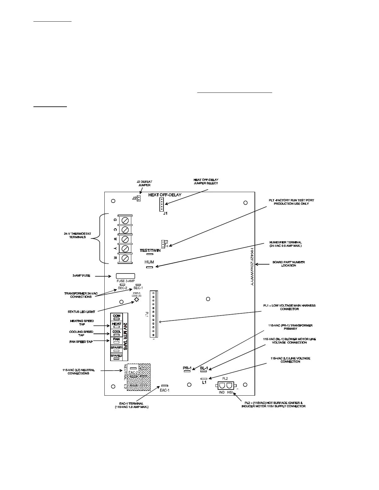
24--V Wiring
Make field 24-- v connections at the 24 --v terminal strip. See Fig.
37. Connect terminal Y as shown in Fig. 36 for proper cooling
operation. Use only AWG No. 18, color-- coded, copper thermostat
wire.
NOTE: Use AWG No. 18 color-coded copper thermostat wire for
lengths up to 100 ft. (31 M). For wire lengths over 100 ft., use
AWG No. 16 wire.
The 24--v circuit contains an automotive--type, 3--amp. fuse located
on the control. Any direct shorts during installation, service, or
maintenance could cause this fuse to blow. If fuse replacement is
required, use ONLY a 3-- amp. fuse of identical size. See Fig. 37.
Accessories (See Fig. 37.)
1. Electronic Air Cleaner (EAC)
Connect an accessory Electronic Air Cleaner (if used) using
1/4-- in. female quick connect terminals to the two male
1/4-- in. quick --connect terminals on the control board
marked EAC--1 and EAC--2. The terminals are rated for
115VAC, 1.0 amps maximum and are energized during
blower motor operation.
2. Hu midifier (HUM)
The HUM terminal is a 24 VAC output, energized when the gas
valve relay is operating during a call for heat.
Connect an accessory 24 VAC, 0.5 amp. maximum humidifier (if
used) to the ¼--in. male quick--connect HUM terminal and
COM-- 24V screw terminal on the control board thermostat strip.
NOTE: If the humidifier has its own 24 VAC power supply, an
isolation relay may be required. Connect the 24 VAC coil of the
isolation relay to the HUM and COM/24V screw terminal on the
control board thermostat strip.
Alternate Power Supplies
This furnace is designed to operate on utility generated power
which has a smooth sinusoidal waveform. If the furnace is to be
operated on a generator or other alternate power supply, the
alternate power supply must produce a smooth sinusoidal
waveform for compatibility with the furnace electronics. The
alternate power supply must generate the same voltage, phase, and
frequency (Hz) as shown in Table 11 or the furnace rating plate.
Power from an alternate power supply that is non-sinusoidal may
damage the furnace electronics or cause erratic operation.
Contact the alternate power supply manufacturer for specifications
and details.
A190023
Fig. 37 -- Example of Single Stage Furnace Control

Table of Contents

Related product manuals