EasyManua.ls Logo

Bryant 915SB - Alberta and Saskatchewan Vent Termination; Vent Terminations for Ventilated Combustion Air

Bryant 915SB
78 pages
Print Icon
To Next Page IconTo Next Page
To Next Page IconTo Next Page
To Previous Page IconTo Previous Page
To Previous Page IconTo Previous Page
Loading...
55
A13078
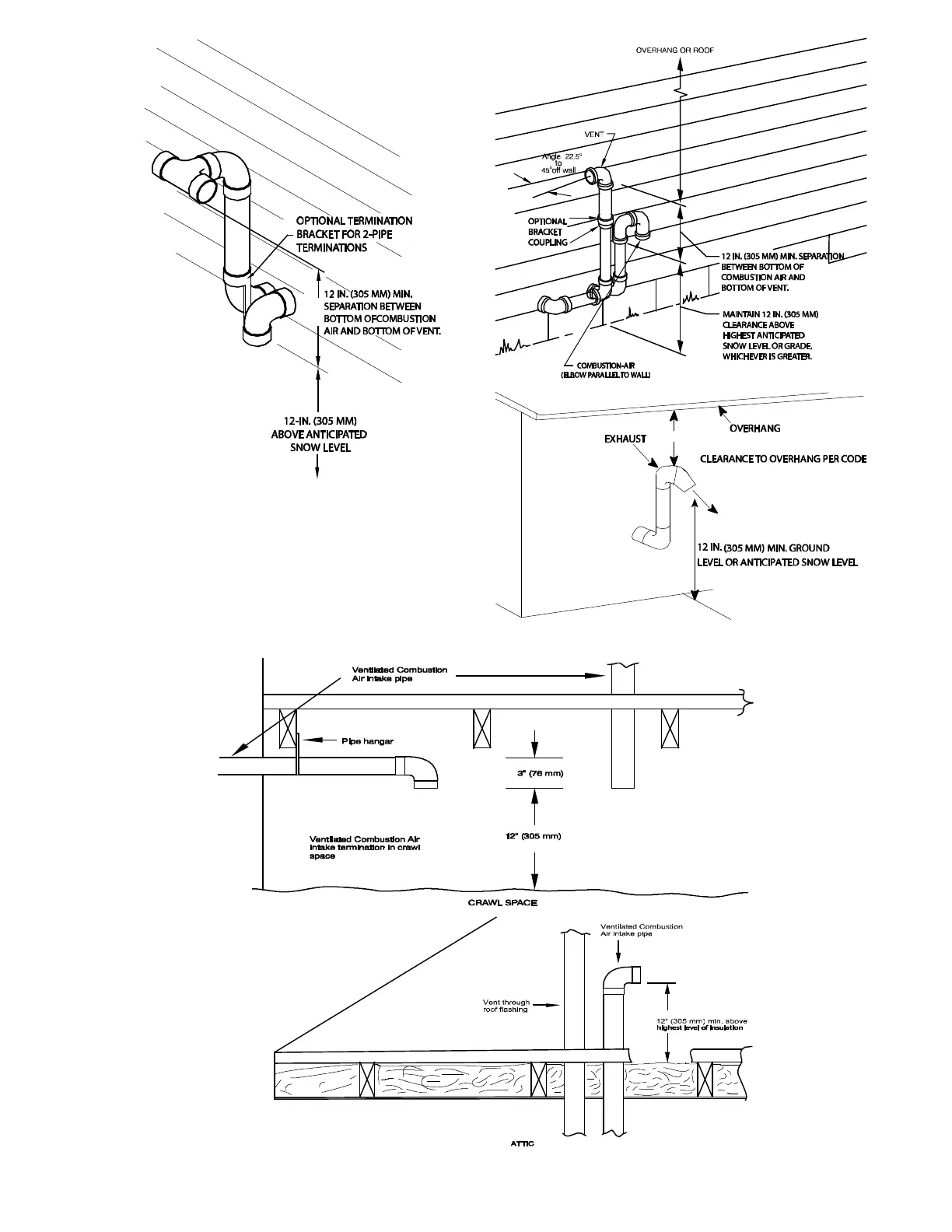
Fig. 56 -- Alberta and Saskatchewan Vent Termination
A10497
Fig. 57 -- Vent Terminations for Ventilated Combustion Air

Table of Contents

Related product manuals