EasyManua.ls Logo

Bryant 915SB - Page 38

Bryant 915SB
78 pages
Print Icon
To Next Page IconTo Next Page
To Next Page IconTo Next Page
To Previous Page IconTo Previous Page
To Previous Page IconTo Previous Page
Loading...
38
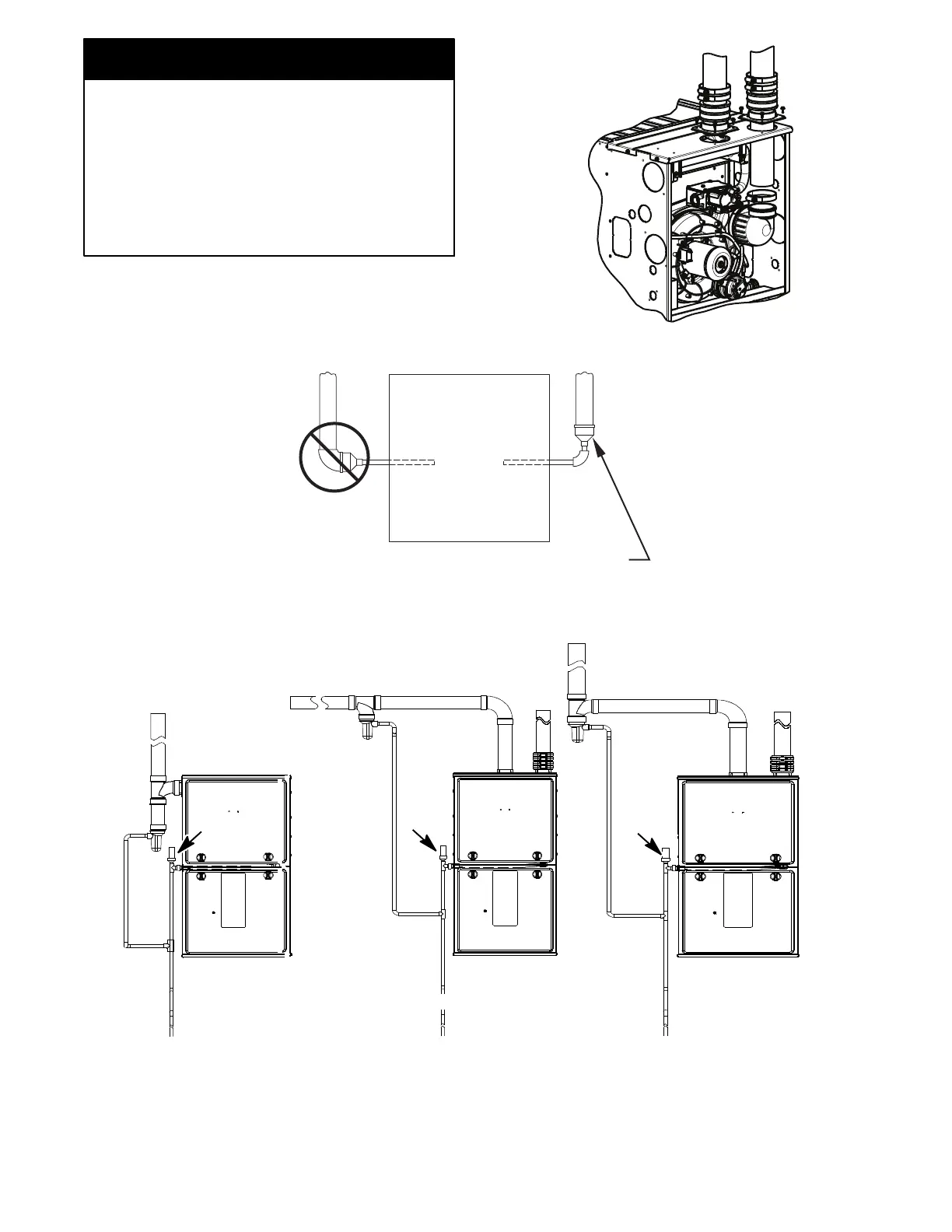
OPTIONAL CONFIGURATION FOR COMBUSTION
AIR INLET PIPE
In applications where there is a risk of excessive moisture
entering the combustion air inlet pipe, a moisture trap may be
added to the inlet pipe to help prevent moisture from entering
the furnace from the combustion air inlet pipe. See Fig. 41.
When sizing venting systems, the equivalent length of the
optional moisture trap (15 feet/5 M) must be taken into
account.
NOTICE
EXAMPLE FOR
UPFLOW INSTALLATIONS.
MAY BE APPLIED TO
OTHER CONFIGURATIONS.
A12220
Fig. 39 -- Sample Inlet Air Pipe Connection for Polypr opylene
Venting Systems
FURNACE
PIPE DIAMETER
TRANSITION IN
VERTICAL SECTION
NOT IN
HORIZONTAL
SECTION
A93034
Fig. 40 -- Combustion Air and Vent Pipe Diameter Transition Location and Elbow Configuration
Representative drawing only, some models may vary in appearance.
TO CODE--APPROVED DRAIN OR CONDENSATE PUMP
Recommend T” fitting with 4--inch minimum height standpipe (A) of same diameter or larger extending upward.
A
A
A

Table of Contents

Related product manuals