EasyManua.ls Logo

Bryant 926TB - Page 59

Bryant 926TB
84 pages
Print Icon
To Next Page IconTo Next Page
To Next Page IconTo Next Page
To Previous Page IconTo Previous Page
To Previous Page IconTo Previous Page
Loading...
59
A13078
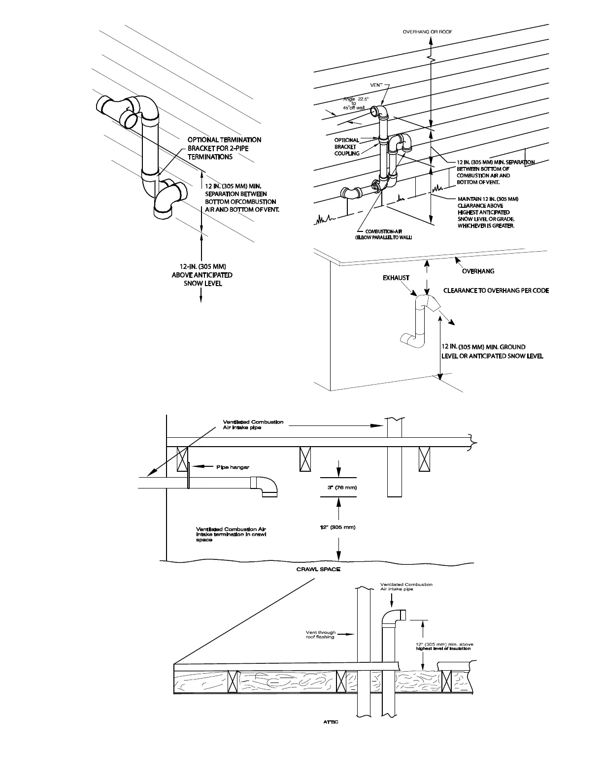
Fig. 58 -- Alberta and Saskatchewan Vent Termination
Fig. 59 -- Vent Terminations for Ventilated Combustion Air

Table of Contents

Related product manuals