EasyManua.ls Logo

BullFrog A7 - R & X Series Hardware Setup;Wiring

Default Icon
72 pages
Print Icon
To Next Page IconTo Next Page
To Next Page IconTo Next Page
To Previous Page IconTo Previous Page
To Previous Page IconTo Previous Page
Loading...
59
(yt6)
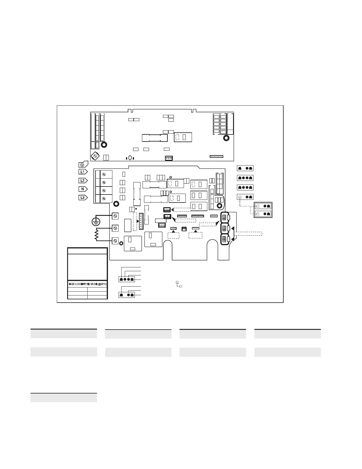
For the connection to the 0.250 inch (6mm) terminals, the high voltage accessories must be provided with female quick
connect terminals, straight and non-insulated for all types of connections, including the ground. Only 230 V accessories
may be connected to the corresponding terminals of the printed circuit of the in.yt. Refer to the following tables for
correct connections. Note that all female terminals must be correctly and completely seated on the printed circuit
terminals for proper current ratings.
Pump 1 (A2)
Voltage 230 V
Green / ground G
Black / low speed K6
Red / high speed K3
White / common N
Pump 2 (A3)
Voltage 230 V
Green / ground G
Black / low speed K2
Red / high speed K1
White / common N
Circulation pump (A1)
Voltage 230 V
Green / ground G
Black / line K4
White / common N
Ozonator (A4)
Voltage 230 V
Green / ground G
Black / line K26
White / common N
Light (12 V AC, 1A Max.)
Always on P34
Relay P35
A3
A4
A1
A2
N
L2
L1
L3
OPTIONAL
PP1 SPLITTER
ONE OR THE OTHER OF THESE
= OUTPUTS CAN BE USED, BUT
NOT BOTH.
HIGH SPEED (RED)
LOW SPEED (BLACK)
COMMON (WHITE)
GROUND (GREEN)
LIVE (BLACK)
COMMON (WHITE)
GROUND (GREEN)
- USE ONLY SAME TYPE
AND RATING OF FUSE
- UTILISER SEULEMENT
LE MÊME TYPE DE
FUSIBLE, DU MÊME
COURANT NOMINAL
WARNING
MAX CURRENT PER FUSE (@58°C)
F2 : 20A MAX
F3 : 20A MAX
F1 : 20A MAX
F22 : 20A MAX
F24 : 20A MAX
F21 : 20A MAX
HEATING
ELEMENT
HEATER
GROUND
REFER TO LINE INPUT
CONNECTION TABLE
INPUT RATING 48A MAX
P98
P112
P108
F24
20A/400VAC MIN
CLASS aM
P99
P100
K26
P
P102P101
P107
P133 P132
P105 P106
P119
P92P93P94P95P96
P87
P88P89
P90P91
P86
Y G
P97
P103 P104
P134
P114
P115
P117
P118
P120
P121
P123
P124
P125
G
Y
P116
P122
X
X
K1
K3
K2
K4
K6
K9
K10
P33
P36
P37
P39
P40
P34
P19
P6
P2
P3
P4
P8
P29
P41
P45
P43
P44
P35
20A/400VAC MIN
CLASS aM
F2
20A/400VAC MIN
CLASS aM
20A/400VAC MIN
CLASS aM
F3
F1
F4
1
2
3
4
250mA/250VAC
3AG SLOW-BLO
P
P
P
P
P
CO C1CO
P11
P13
P14
P15
P28
P30
P32
P31
C
C
P22
P66
P55
P76
P74
P75
P17
P21
P7
P5
K8
P10
P
K5
TRANSFORMER
LIGHT, SWITCHED
P38
HL & TEMP.
PROBE
P42
IN.FLO
SENSOR
MAIN KEYPAD
COMMUNICATION LINKS
LIGHT, DIRECT
P83
G
N
P56
P57
P58
P59
P60
P61
P62
P47P48P49P50
P51
P52
P53
IMPORTANT: See electrical connection and jumper set up on page 47-49 for 1, 2, 3 phase connections.

Other manuals for BullFrog A7

Related product manuals