EasyManua.ls Logo

Burnham MPC - Page 10

Burnham MPC
108 pages
Print Icon
To Next Page IconTo Next Page
To Next Page IconTo Next Page
To Previous Page IconTo Previous Page
To Previous Page IconTo Previous Page
Loading...
10
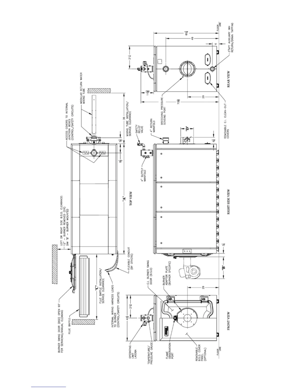
Figure 1b: Dimensional Information
* Wiring harness shown in this location for illustration purposes - typically, wiring harness leads will exit jacket on same side as BSD hinges.

Related product manuals