EasyManua.ls Logo

Burnham MPC - Page 45

Burnham MPC
108 pages
Print Icon
To Next Page IconTo Next Page
To Next Page IconTo Next Page
To Previous Page IconTo Previous Page
To Previous Page IconTo Previous Page
Loading...
45
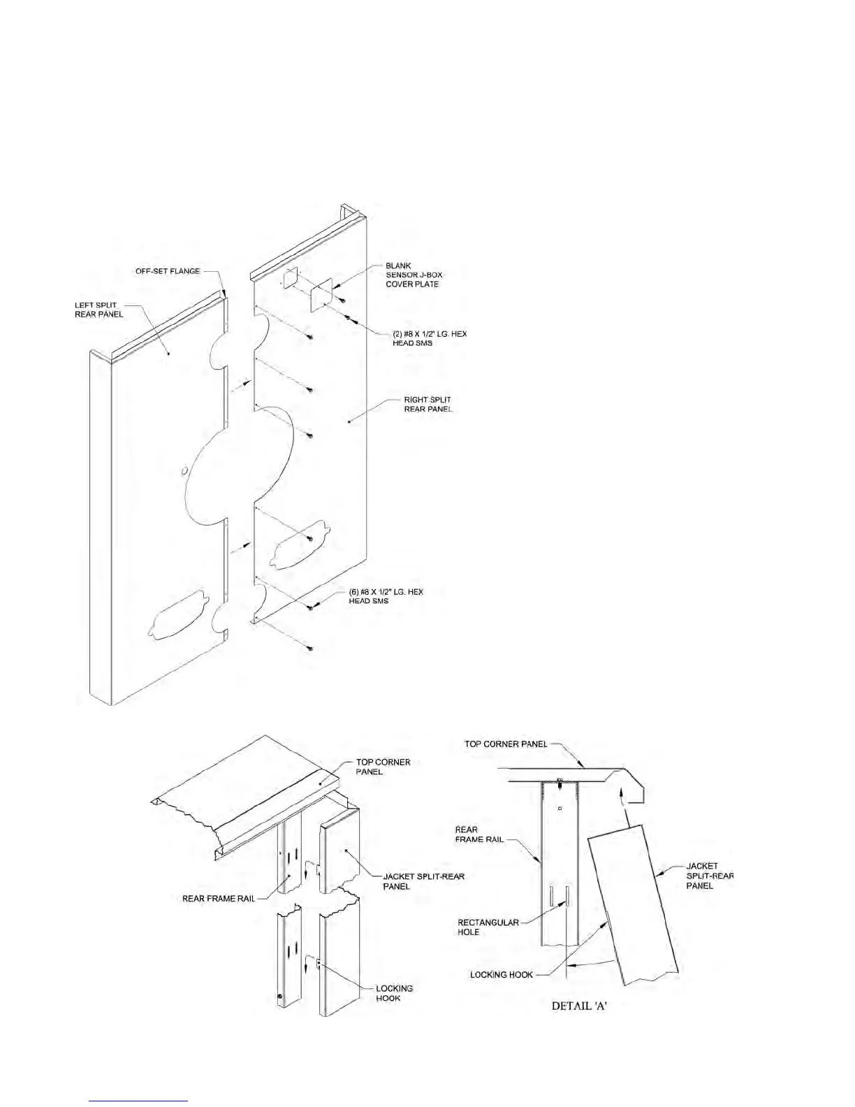
Figure 28: Jacket Split Rear Panel Detail
Figure 29: Install Jacket Split Rear Panel
 Locate Jacket Split Rear Panel shipped in JC-1 Jacket
Carton.
Note: Before installing rear panel, drain valve and
indirect water heater return piping (furnished by
others) should be installed now due to
accessibility.
Rear panel is shipped loose in two (2) halves, see
Figure 28. As viewed from rear of boiler, install left
split rear panel rst. Install panel by tilting on a slight
angle to engage top ange behind bottom ange on
jacket top corner panel, see Figure 29, Detail A. Rotate
bottom of left rear panel until locking tabs rest against
vertical frame rail, ex side of panel until hooks clear
face of vertical rail. Align top and bottom hooks with
rectangular holes nearest rear edge. Engage both
hooks and allow panel to drop down to lock in place,
see Figure 29. Repeat same procedure to install jacket
right split rear panel, making sure that right side panel
overlaps offset ange on left side panel. Secure panel
seam with six (6) #8 x ½” lg. hex head SMS, as shown
in Figure 28.
 Install two (2) clean-out covers to openings at bottom
of ue collector. Locate four (4) 5/16” at washers and
four (4) 5/16 -18 x 7/8” lg. cap screws from hardware
bag. Thread one (1) washer and cap screw into left
tapping on each opening. Engage slot on clean-out
cover behind washer. Thread second cap screw with
washer through slot and into tapping on opposite end.
Wrench tighten hardware securely. See Figure 9.
 Locate and Install Blank Sensor J-Box Cover over
opening in Jacket Right Split Rear Panel as shown in
Figure 28. Secure cover with two (2) #8 x ½” lg hex
head SMS.
 Locate Jacket Top Panel Carton marked ‘JC-3’ and
remove contents. Starting in the front, install jacket
front top panel rst and then add consecutive panel(s)
as outlined in Table XI, working toward the rear of
block assembly.
Install front panel by tilting on a slight angle to engage
top ange behind bottom ange on jacket top corner
panels
installed previously, see Figure 27, Detail A.
Rotate bottom of front panel until locking tabs rest
against vertical frame rails. On one side only, ex side
of panel until hooks clear face of vertical rail. Align top
and bottom hooks with slotted holes nearest front edge.
Engage both hooks and allow panel to drop down to
lock in place. Repeat for opposite side.

Related product manuals