EasyManua.ls Logo

BYD MINI ES - Product Introduction

BYD MINI ES
37 pages
Print Icon
To Next Page IconTo Next Page
To Next Page IconTo Next Page
To Previous Page IconTo Previous Page
To Previous Page IconTo Previous Page
Loading...
24
Notice!
If it keeps continuous cloudy days and MINI ES couldn’t get the energy from the
PV, MINI ES would do the protective charging and use 0.15~0.2kWh energy from
grid for each time.
4. During a blackout, the MINI ES will automatically provide electricity for the house
essential loads, with a total power of 2KVA. This function is just for emergency.
When power of electric appliances exceeds the 2kVA, the MINI ES will self-protect,
and stop power output.
MINI ES is not suitable for high-power and surge devices but low-power devices
like mobile phone, computers and general lighting.
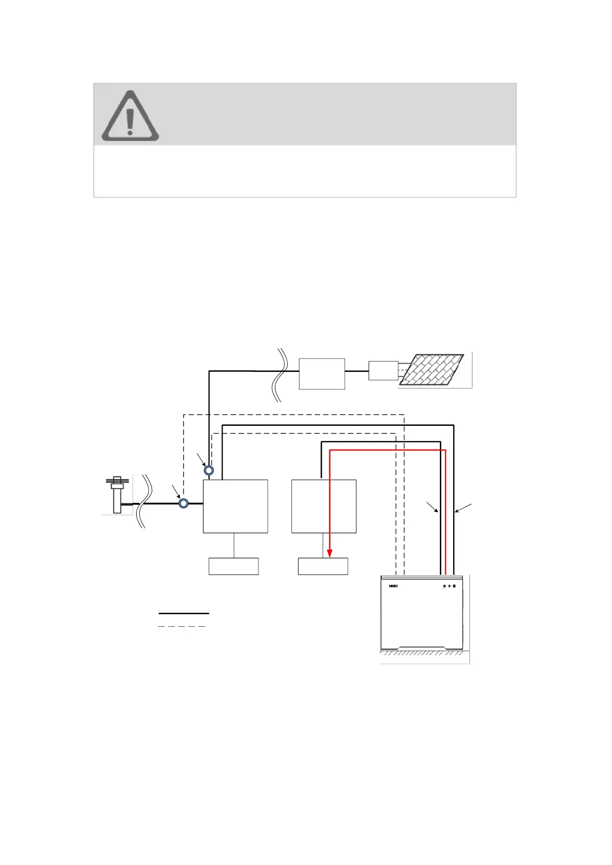
PV inverter
CT2
Grid
General Load
L&N&PE
Indoor/
outdoor
Indoor/
outdoor
Power Line
Signal Line
Important Load
L&N&PE
Combiner
box
CT1
General Load Distributor
Important Load
Distributor
Single-phase
electric appliance
Single-phase
electric appliance
MINI ES
figure9. Power flow diagram
3.5 Product Introduction
Product Appearance
Grid

Other manuals for BYD MINI ES

Related product manuals