EasyManua.ls Logo

BYD MINI ES - Page 7

BYD MINI ES
37 pages
Print Icon
To Next Page IconTo Next Page
To Next Page IconTo Next Page
To Previous Page IconTo Previous Page
To Previous Page IconTo Previous Page
Loading...
5
the Grid to connect or disconnect with the Grid and limit power of charging or
discharging.
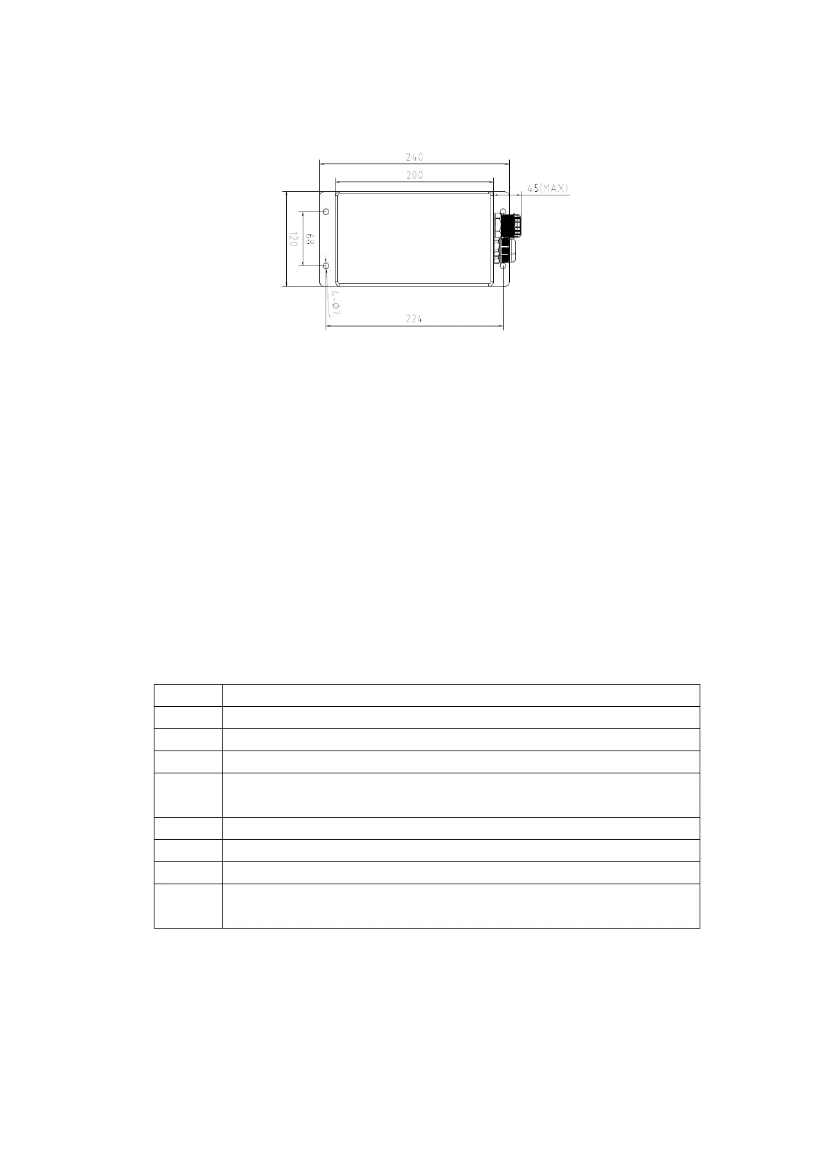
figure3. Dimensional drawing
The MINIES supports the DRM0 mode and is used in conjunction with the DRM0
combination switch.DRM0 can be configured through a third-party debugging tool. The
below debugging tool Modbus Slave is used as an example
MINIES disables DRM0 mode by default. If you need to switch it on, you can use the
third-party debugging tool to set the register of DRM0 address. The default address is
128.After turning on DRM0 mode, the combination switch (as shown below) is
connected to the rear panel of ESS through standard RJ45 network cable, The "DRM"
interface is ready to use.
The MINIES supports the DRM function as specified in AS4777.2.2015.The terminal
block inside the MINIES is used for connecting to a demand response enabling device
(DRED).
The DRED asserts DRMs, The MINIES detects and initiates a response to all
supported demand response commands within 2s.The following table lists the DRMs
supported by the MINIES.(DRM3 and DRM7 will supply or skin reactive power)
DRM0
The MINIES is in the state of “Key-stop”
DRM1
The import power from the grid is 0.
DRM2
The import power from the grid is no more than 50% of the rated power.
DRM3
The import power from the grid is no more than 75% of the rated power.
DRM4
The import power from the grid is no more than 100% of the rated power.
but subject to the constrains from other active DRMs
DRM5
The export power from the grid is 0.
DRM6
The export power from the grid is no more than 50% of the rated power.
DRM7
The export power from the grid is no more than 75% of the rated power.
DRM8
The export power from the grid is no more than 100% of the rated power, but subject
to the constrains from other active DRMs.

Other manuals for BYD MINI ES

Related product manuals