EasyManua.ls Logo

Cafe CGY366P4TW2 - Page 21

Cafe CGY366P4TW2
48 pages
Print Icon
To Next Page IconTo Next Page
To Next Page IconTo Next Page
To Previous Page IconTo Previous Page
To Previous Page IconTo Previous Page
Loading...
31-2000814 Rev. 2 5
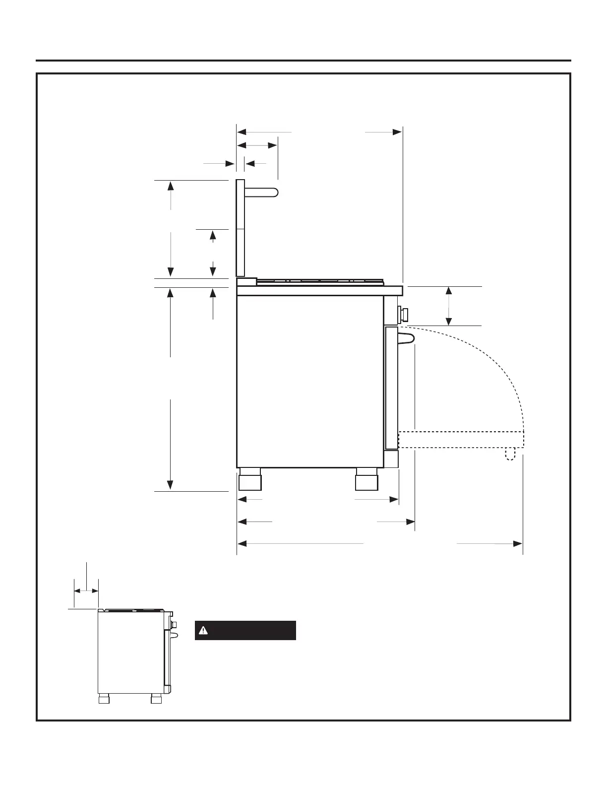
Caractéristiques
DIMENSIONS DE L’APPAREIL ET ESPACES
30,5 cm (12”) min par rapport aux
matériaux inflammables ou 0 par
rapport aux matériaux ignifuges
au-dessus de la surface de cuisson **
48-1/4” (121,28 cm) avec
la porte du four ouverte
31-1/8” (79,06 cm) jusqu’à
l’avant de la poignée
35-1/4”
(88,26 cm)
à 36-3/4”
(89,53 cm)
30–36”
(76 –91 cm)
13/16” (2 cm)
10-1/2” (24,13 cm)
29-3/8” (74,61 cm)
jusqu’au bord avant
28-1/2” (72,39 cm)
jusqu’à l’avant de la porte
Dosseret
en option
Espace par
rapport à un
mur arrière ou
latéral sous
la surface de
cuisson
7” Hauteur du panneau
de commande (17,78 cm)
1-1/2”
(3,8 cm)
** Selon la définition du National Fuel Gas Code (ANSI Z223.1/CSA B149.1,édition courante). Les dégagements
à partir des matériaux incombustiblesne sont pas du ressort de la norme ANSI Z21.1/CSA 1.1 et ils ne sont pas
certifiés par la CSA. Les dégagements inférieurs à 30,5 cm (12 po)doivent être approuvés d’après les codes
locaux et/oupar les autorités compétentes.
AVERTISSEMENT
Le un dosseret de 12” (30 cm) en acier inoxydable doit être
installé avec un dosseret ignifuge personnalisé.
Le dosseret fini doit recouvrir la totalité du mur arrière jusqu’au bas de la hotte, ou en
l’absence de hotte, 48” (121 cm) aux matériaux inflammables.
(Le dosseret en acier inoxydable de 12 po (30,5 cm) de haut n’est disponible que pour le
modèle 36 po.)
12”
(30 cm)

Table of Contents

Related product manuals