EasyManua.ls Logo

Cafe CGY366P4TW2 - Page 37

Cafe CGY366P4TW2
48 pages
Print Icon
To Next Page IconTo Next Page
To Next Page IconTo Next Page
To Previous Page IconTo Previous Page
To Previous Page IconTo Previous Page
Loading...
31-2000814 Rev. 2 5
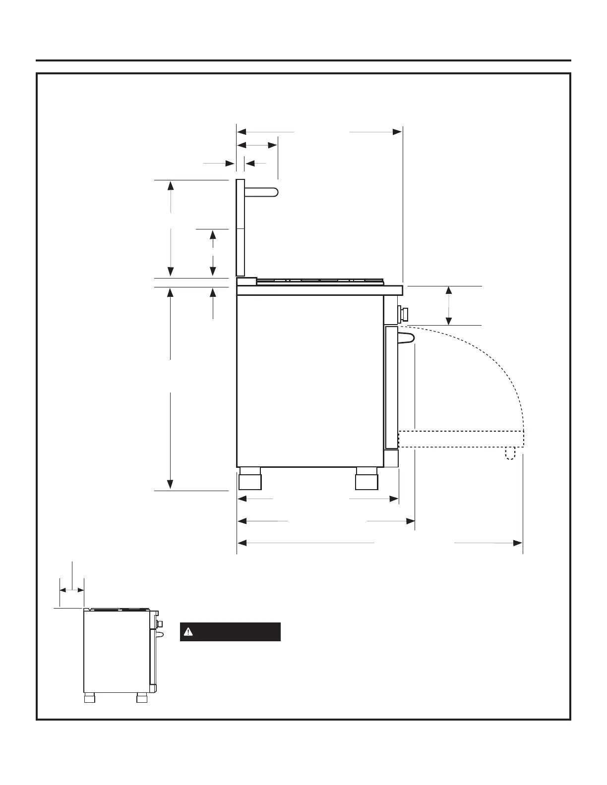
** De acuerdo con lo definido por el National Fuel Gas Code (Código Nacional de Gas Combustible) (ANSI Z223.1/CSA
B149.1, Edición Actual). Los espacios de despeje para materiales no combustibles no están dentro del alcance del
ANSI Z21.1/CSA 1.1 y no están certificados por CSA. Los espacios de despeje inferiores a 12” deberán ser aprobados
por los códigos locales y/o por la autoridad con jurisdicción.
ADVERTENCIA
El accesorio para salpicadero de acero inoxidable de 12” de altura
debe instalarse en combinación con un salpicadero no combustible a medida.
El salpicadero terminado debe cubrir toda la pared trasera hasta la parte inferior de una
capucha, o cuando no haya una capucha, 48” respecto de elementos combustibles.
(El accesorio del tablero posterior de acero inoxidable de 12” sólo está disponible para el
modelo de 36”)
Información de diseño
DIMENSIONES Y ESPACIOS DEL PRODUCTO
12” mín. respecto de materiales
combustibles o 0” respecto de
materiales no combustibles
sobre la superficie de cocción **
Espacio de 0”
respecto de una
pared trasera
o lateral debajo
de la superficie
de cocción
48-1/4” con la puerta
del horno abierta
31-1/8” Hasta
el frente de la manija
35-1/4”
a
36-3/4”
30-36”
12”
13/16”
10-1/2”
29-3/8”
hasta el lado
frontal
28-1/2” Hasta
el frentede la puerta
Accesorios
opcionales para
salpicadero
7” altura
del panel de control
1-1/2”

Table of Contents

Related product manuals