EasyManua.ls Logo

Cafe CGY366P4TW2 - Page 5

Cafe CGY366P4TW2
48 pages
Print Icon
To Next Page IconTo Next Page
To Next Page IconTo Next Page
To Previous Page IconTo Previous Page
To Previous Page IconTo Previous Page
Loading...
31-2000814 Rev. 2 5
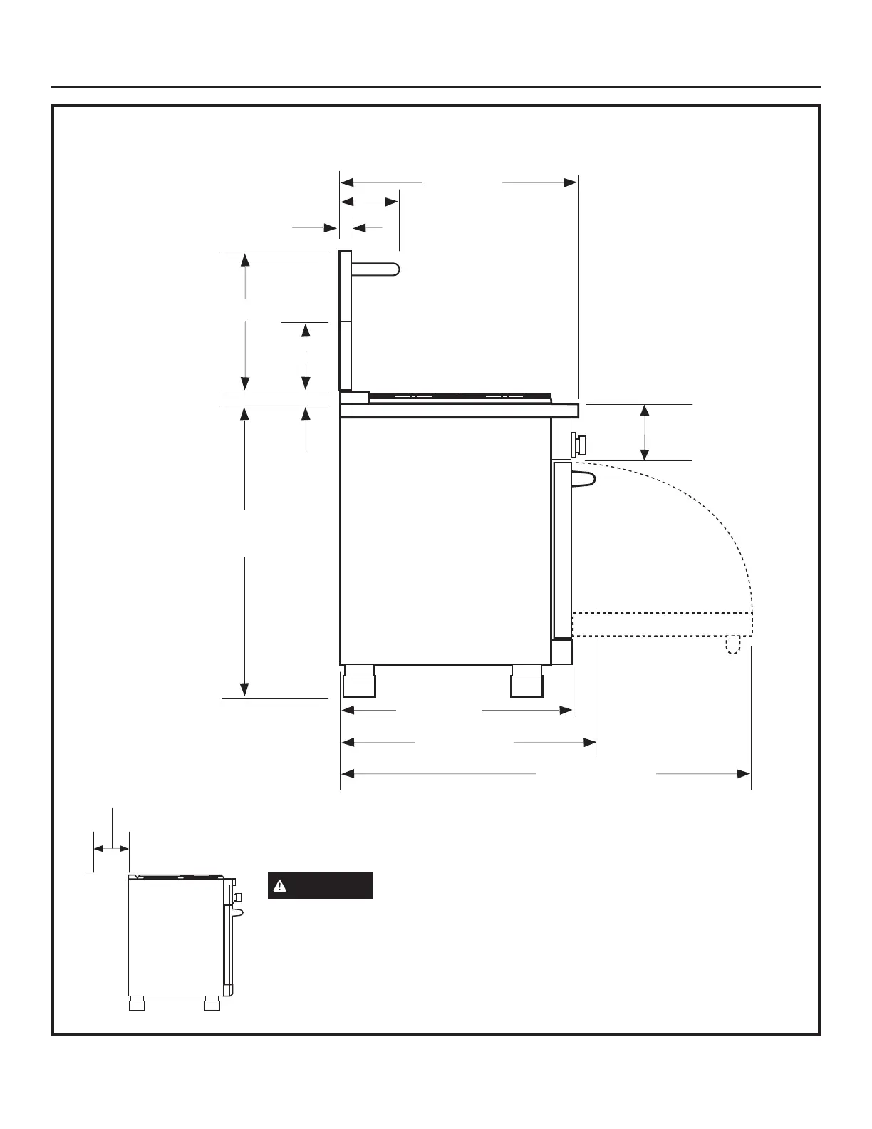
Design Information
PRODUCT DIMENSIONS AND CLEARANCES
´0LQWRFRPEXVWLEOHVRU´
to a non-combustible material
above the cooking surface **
´
With Oven Door Open
´
To Front of Handle
´
to
´
´
´
´
´
´
To Front Edge
´
To Front of Door
Optional
Backsplash
Accessories
´&OHDUDQFH
to a back or
VLGHZDOOEHORZ
the cooking
surface
´&RQWURO3DQHO
Height
´
$VGHILQHGLQWKH1DWLRQDO)XHO*DV&RGH$16,=&6$%&XUUHQW(GLWLRQ&OHDUDQFHVIURP
QRQFRPEXVWLEOHPDWHULDOVDUHQRWSDUWRIWKH$16,=&6$VFRSHDQGDUHQRWFHUWLILHGE\&6$
&OHDUDQFHVOHVVWKDQ´PXVWEHDSSURYHGE\ORFDOFRGHVDQGRUWKHDXWKRULW\KDYLQJMXULVGLFWLRQ
WARNING
7KH´KLJKVWDLQOHVVVWHHOEDFNVSODVKDFFHVVRU\PXVWEH
LQVWDOOHGLQFRPELQDWLRQZLWKDFXVWRPQRQFRPEXVWLEOHEDFNVSODVK
7KHILQLVKHGEDFNVSODVKPXVWFRYHUWKHHQWLUHEDFNZDOOXSWRWKHERWWRPRIDKRRG
RUZKHQWKHUHLVQRKRRG´WRFRPEXVWLEOHV
´KLJKVWDLQOHVVVWHHOEDFNVSODVKDFFHVVRU\LVRQO\DYDLODEOHIRUWKH´PRGHO

Table of Contents

Related product manuals