EasyManua.ls Logo

CAME SDN6 - Electrical Connections and Control Board; Control Board Component Identification

CAME SDN6
28 pages
Print Icon
To Next Page IconTo Next Page
To Next Page IconTo Next Page
To Previous Page IconTo Previous Page
To Previous Page IconTo Previous Page
Loading...
p.
12
12 - Manual code
FA 00 014- EN
FA00014-EN v.
3
3 04/2016 - © Came S.p.A. The contents of this manual may be changed at any time without prior notice.
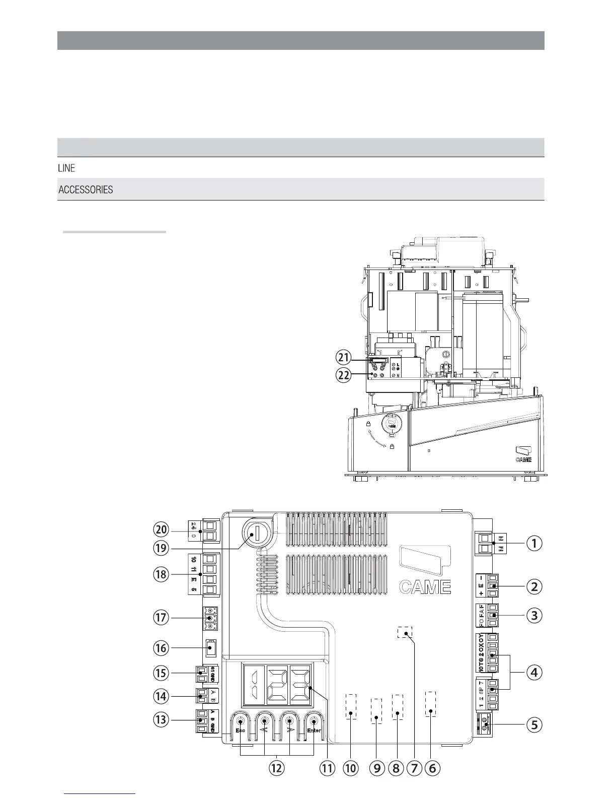
ELECTRICAL CONNECTIONS AND PROGRAMMING
Warning! Before working on the control panel, cut o the main current supply and, if present, remove any
batteries.
Power supply to the control board and control devices : 24 V AC/ DC.
Functions on the input and output contacts, time adjustments and user-management settings are set and viewed
on the control board's display.
All connections are quick-fuse protected.
Fuses ZN7
- Line 1.6 A-F
- Accessories 2 A-F
Description of parts
1. Terminal for gearmotors
2. Terminals for encoders
3. Terminals for limit-switches
4. Command and safety devices terminals
5. Antenna terminal
6. AF card connector
7. Memory Roll card connector
8. R700/R800 board connector
9. RSE board connector
10. Connector for the RIO-CONN card
11. Display
12. Programming buttons
13. Terminals for paired of CRP connection
14. Terminals for transponder devices
15. Keypad selector terminal
16. Connector for the GSM module
17. Terminals for the RGP1 module
18. Terminals for signaling devices
19. Accessories fuse
20. Terminals for powering the control board
21. Line fuse
22. Power supply terminal board

Related product manuals