EasyManua.ls Logo

Caple DD810BK - Page 49

Caple DD810BK
60 pages
Print Icon
To Next Page IconTo Next Page
To Next Page IconTo Next Page
To Previous Page IconTo Previous Page
To Previous Page IconTo Previous Page
Loading...
Instruction manual DD810BK
49
Please keep this instruction manual for future reference
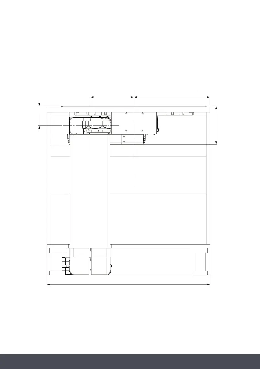
REAR VIEW OF RECIRCULATING INSTALLATION:
900
108
241 420
212

Related product manuals