EasyManua.ls Logo

Carrier 30HXC Series - Dimensions, Clearances, and Weight Distribution (Cont.); 3.2 30 HXC 200-375

Carrier 30HXC Series
36 pages
To Next Page IconTo Next Page
To Next Page IconTo Next Page
To Previous Page IconTo Previous Page
To Previous Page IconTo Previous Page
Loading...
6
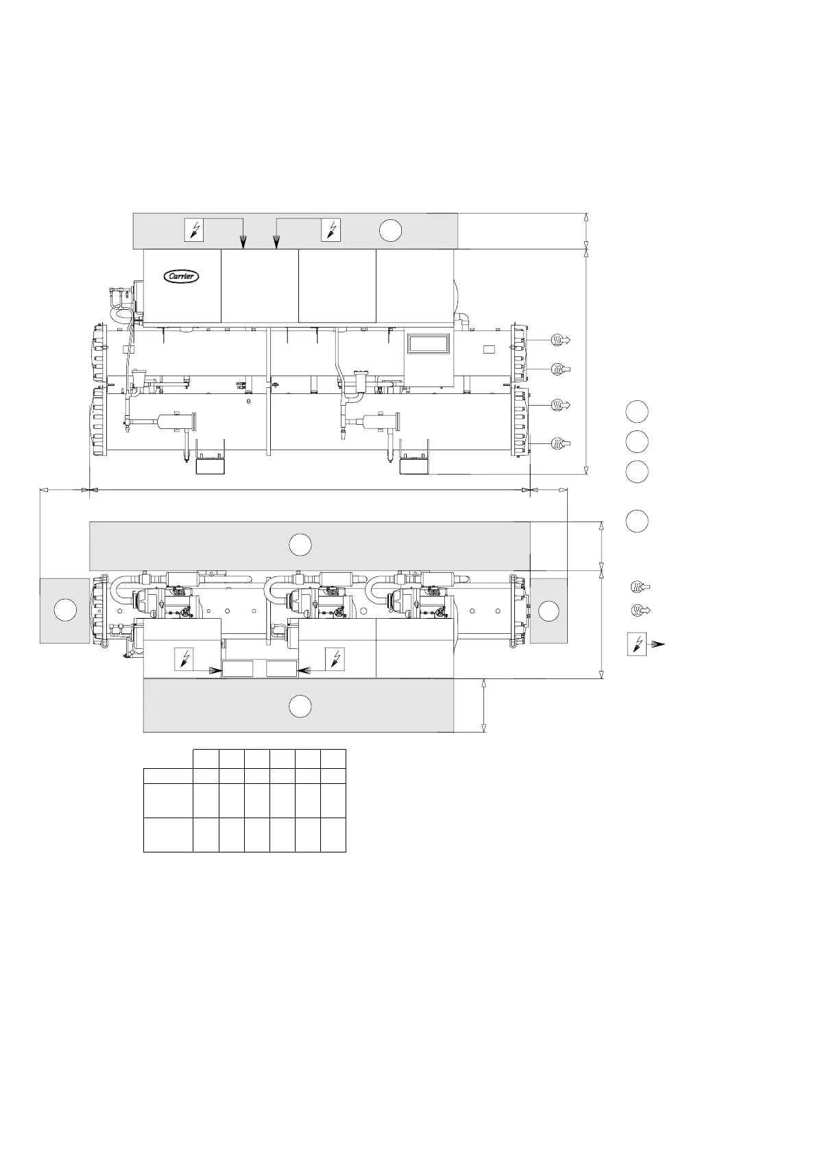
3 - DIMENSIONS, CLEARANCES, WEIGHT DISTRIBUTION (CONT.)
3.2 - 30HXC 200-375
NOTE: Refer to the certified dimensional drawings supplied with the unit, when designing an installation.
Evaporator
Condenser
Clearances required for
heat exchanger tube
removal. Clearances D
and E can be either on
the left or on the right
hand side.
Water inlet
Water outlet
Power supply
kg: total operating weight
Clearances required
for operation and
maintenance
2
4
1
3
3
C
600
A
4
3
3
D
E
700
B
500
D mm
3620
E mm
kg
C mm
2035
1000 4090
B mm
980
30HXC200
A mm
3975
3620
2116
1000
4705
4815
4985
980
30HXC230
30HXC260
30HXC285
3995
4120
2163
1000
5760
5870
6105
980
30HXC310
30HXC345
30HXC375
4490
4

Table of Contents

Related product manuals