EasyManua.ls Logo

Carrier 30HXC Series - Dimensions, Clearances, and Weight Distribution (Cont.); 3.3 30 GX 082-182

Carrier 30HXC Series
36 pages
To Next Page IconTo Next Page
To Next Page IconTo Next Page
To Previous Page IconTo Previous Page
To Previous Page IconTo Previous Page
Loading...
7
2000
1830
2000
1830
20002000
1525
1525
2
1
2256
B
1830
1830
1000
1000
A
2287
30GX-082
30GX-092
30GX-102
30GX-112
30GX-122
30GX-132
1
1
1
1
2
30GX-152
30GX-162
30GX-182
2
kg
3116
3157
3172
B mm
2215
30GX082
30GX092
30GX102
A mm
2970
3515
3531
3633
2045
30GX112
30GX122
30GX132
3427
3920
3936
2835
30GX152
30GX162
4342
4853
1820
30GX182
5996
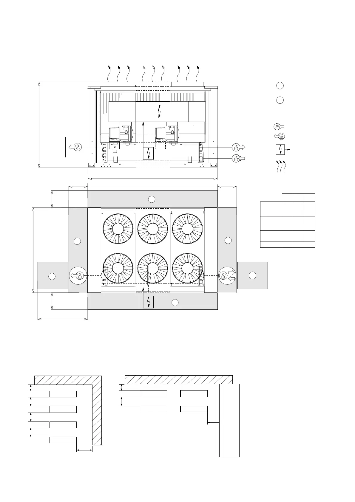
3 - DIMENSIONS, CLEARANCES, WEIGHT DISTRIBUTION (CONT.)
3.3 - 30GX 082-182
NOTE: Refer to the certified dimensional drawings supplied with the unit, when designing an installation.
Water inlet
Water outlet
Clearances required for
evaporator tube removal.
Clearances can be either
on the left or on the right
hand side.
Power supply
kg: total operating weight
Clearances required
for operation and
maintenance
Air outlet - do not obstruct
Multiple chiller installation (see note 2)
SOLID SURFACE AREA SOLID SURFACE AREA
Notes:
1. Unit must have clearances for air flow as follows:
Top: do not restrict in any way
2. In case of multiple chillers (up to four units), the
respective clearance between them should be increased
from 1830 to 2000 mm for the side space requirement.
3. Clearances sre required for cooler tube removal.

Table of Contents

Related product manuals