EasyManua.ls Logo

Carrier 50HC Series - Page 120

Carrier 50HC Series
124 pages
To Next Page IconTo Next Page
To Next Page IconTo Next Page
To Previous Page IconTo Previous Page
To Previous Page IconTo Previous Page
Loading...
120
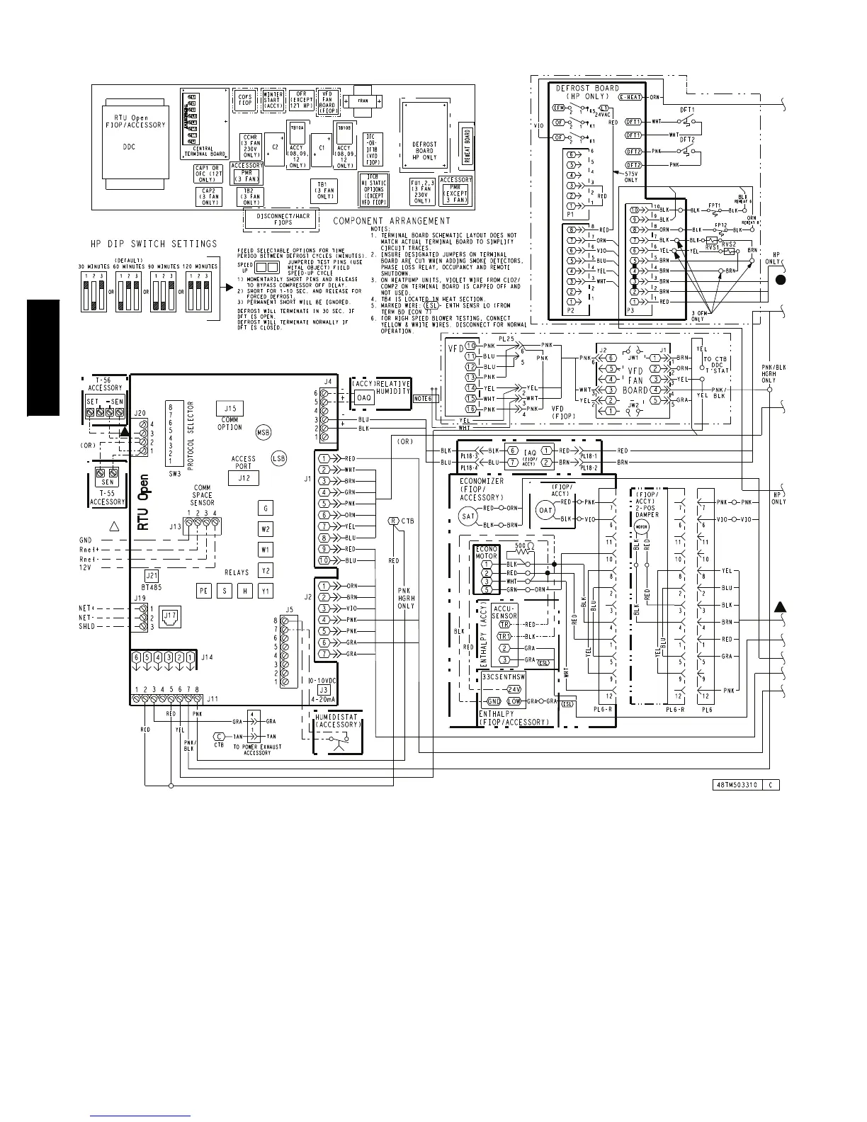
APPENDIX IV. WIRING DIAGRAMS
A160181
Fig. 106 -- RTU--Open A07--D14 Wiring Diagram with Humidi--MiZer
50HC

Table of Contents

Related product manuals