EasyManua.ls Logo

Carrier AquaForce B Series - Page 238

Carrier AquaForce B Series
358 pages
To Next Page IconTo Next Page
To Next Page IconTo Next Page
To Previous Page IconTo Previous Page
To Previous Page IconTo Previous Page
Loading...
238
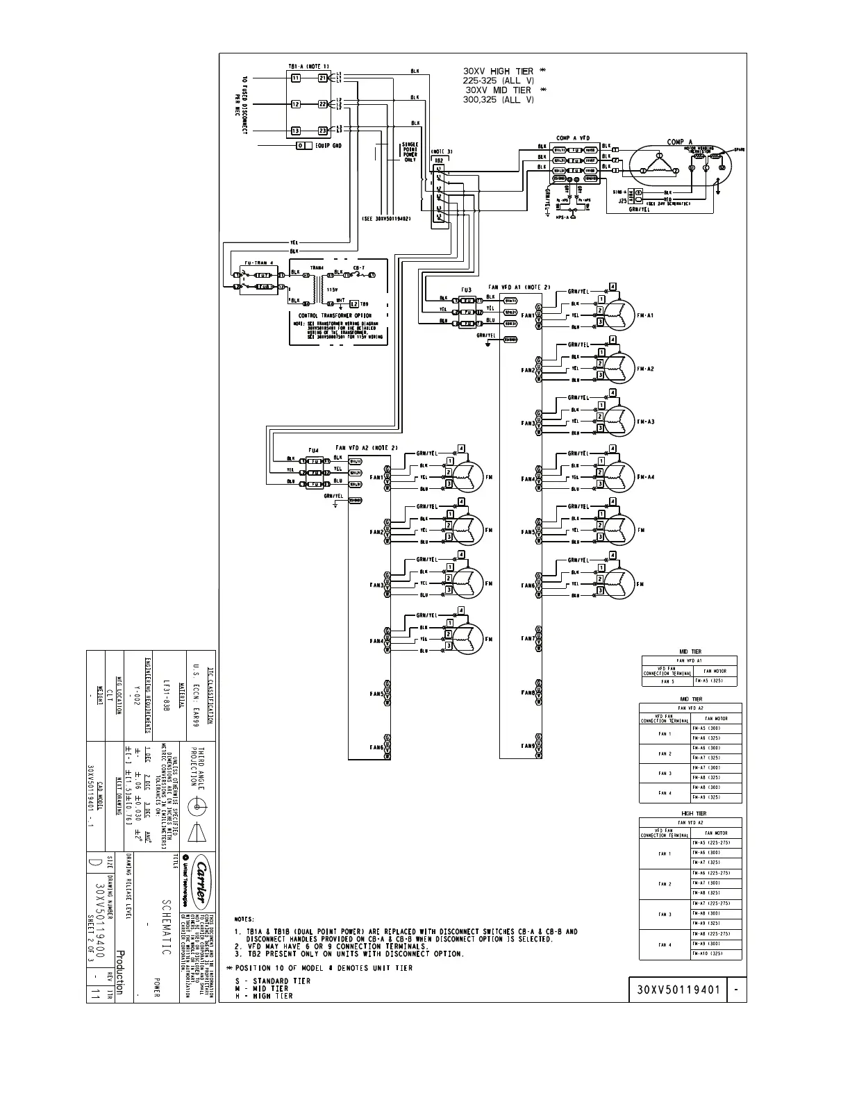
Fig. 98 — 30XV High Tier 225-325 (All Voltages), Mid Tier 300, 325 (All Voltages) Power Schematic
NOTE: See Legend on page 226.

Table of Contents

Related product manuals