EasyManua.ls Logo

Carrier High Wall Duct Free Split System 38MVC - DIMENSIONS; SERVICE VALVE LOCATIONS

Carrier High Wall Duct Free Split System 38MVC
44 pages
Print Icon
To Next Page IconTo Next Page
To Next Page IconTo Next Page
To Previous Page IconTo Previous Page
To Previous Page IconTo Previous Page
Loading...
6
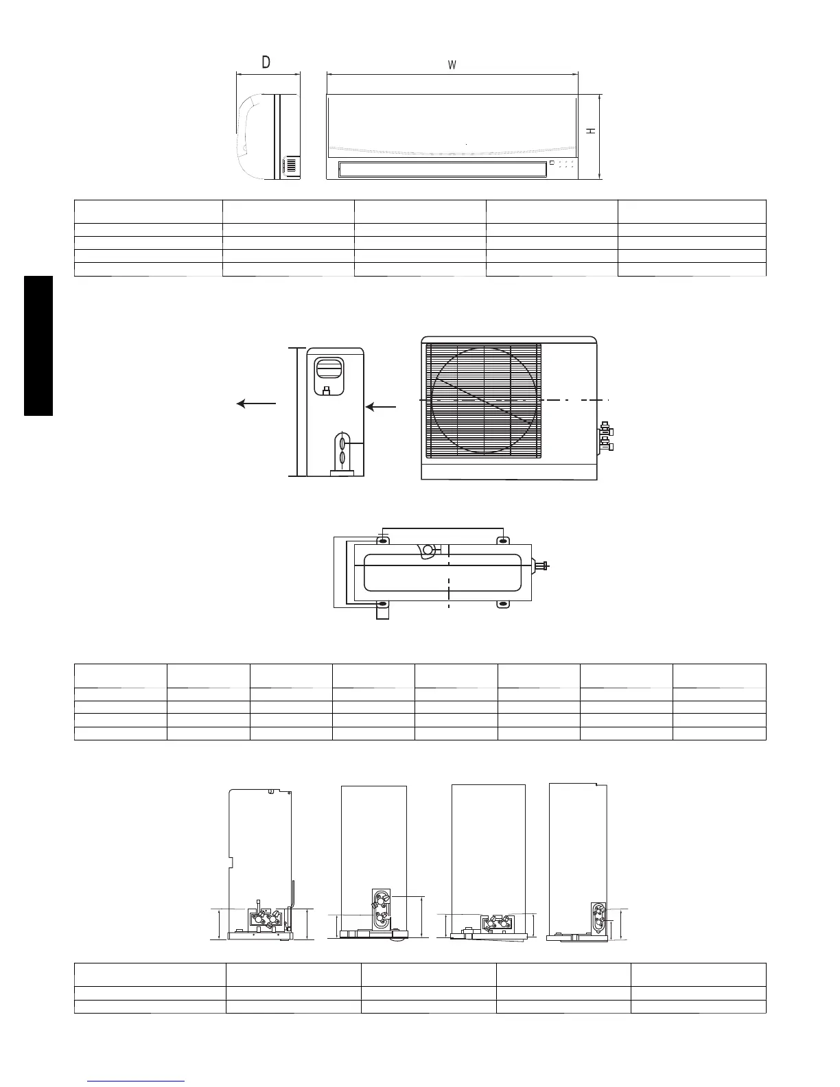
DIMENSIONS -- INDOOR
A07336
Model Size
W
in. (mm)
H
in. (mm)
D
in. (mm)
Weight lb (kg)
9K 32.09 (815) 11.02 (280) 7.68 (195)
24.2 (11)
12K 35.67 (906) 11.26 (286) 9.25 (235)
33.0 (15)
18K 49.21 (1250) 12.80 (325) 9.06 (230)
55.0 (25)
24K 49.21 (1250) 12.80 (325) 9.06 (230)
55.0 (25)
DIMENSIONS -- OUTDOOR
L1
L2
35
W
H
Air Flow
L3
A07337
Model Size
W
in. (mm)
H
in. (mm)
L1
in. (mm)
L2
in. (mm)
L3
in. (mm)
Weight lb (kg)
Cooling Only
Weight lb (kg)
Heat Pumps
9K 30.71 (780) 21.26 (540) 21.61 (549) 11.81 (300) 10.87 (276)
77.0 (35) 79.2 (36)
12K 29.92 (760) 23.23 (590) 20.87 (530) 12.40 (315) 11.42 (290)
85.8 (39) 90.2 (41)
18K 33.07 (840) 27.36 (695) 22.05 (560) 14.17 (360) 13.19 (335)
125.4 (57) 125.4 (57)
24K 31.16 (893) 33.86 (860) 23.11 (588) 13.98 (355) 13.11 (333)
159.5 (72) 160.6 (73)
SERVICE VALVE LOCATIONS
J
K
9K
12K
18K
24K
J
K
J
K
K
J
A07376a
Service Valve Locations
9K
in. (mm)
12K
in. (mm)
18K
in. (mm)
24K
in. (mm)
J 3.46 (88) 3.19 (81) 3.46 (88) 4.02 (102)
K 3.46 (88) 5.63 (143) 3.62 (92) 6.57 (167)
38/40MVC, MVQ

Related product manuals