EasyManua.ls Logo

Chappee initia MASTER 2.24 FF - Page 36

Chappee initia MASTER 2.24 FF
51 pages
Print Icon
To Next Page IconTo Next Page
To Next Page IconTo Next Page
To Previous Page IconTo Previous Page
To Previous Page IconTo Previous Page
Loading...
74
CN
GB
Gr
Fr
SP
PT
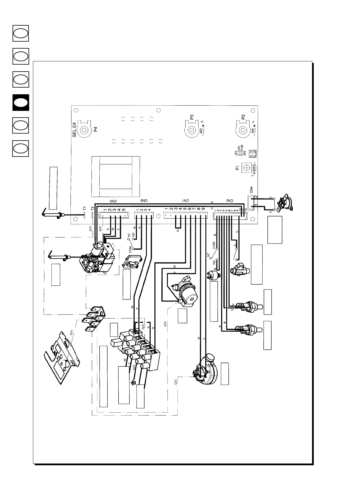
Εικνγραηµέν διάγραµµα συνδεσµλγίας
2.24 FF
0309_2301
ΡΩΜΑ ΚΑΛΩ∆ΙΩΝ
C= Γαλάι
M= Καέ
N= Μαύρ
R= Κκκιν
G/V= Κίτριν/Πράσιν
B= Λευκ
V= Πράσιν
ΥΠΜΝΗΜΑ
P1: Trimmer ρύθµισης ισύς θέρµανσης
P2: Πτενσιµετρ εστύ νερύ
P3: Πτενσιµετρ θέρµανσης
P4: ∆ιακπτης επιλγής E/I/OFF
JP1: Jumper αλλαγής αερίυ ΜΕΘ/LPG
JP2: Jumper ρνυ αναµνή σε λειτυργία θέρµανσης 3’/10”
ΗΛΕΚΤΡ∆Ι ΑΝΙΝΕΥΣΗΣ
ΘΕΡΜΣΤΑΤΗΣ
ΑΣΦΑΛΕΙΑΣ
ΑΝΙΝΕΥΤΗΣ NTC
ΕΣΤΥ ΝΕΡΥ
ΑΙΣΘΗΤΗΡΑΣ
ΠΡΤΕΡΑΙΤΗΤΑΣ
ΕΣΤΥ ΝΕΡΥ
Υ∆ΡΑΥΛΙΚΣ
ΠΙΕΣΤΑΤΗΣ
ΑΝΤΛΙΑ
ΠΙΕΣΤΑΤΗΣ ΑΕΡΑ
ΗΛΕΚΤΡ∆Ι
ΑΝΑΦΛΕΗΣ
ΑΝΙΝΕΥΤΗΣ
NTC ΘΕΡΜ.
ΑΝΕΜΙΣΤΗΡΑΣ
ΘΕΡΜΣΤΑΤΗΣ
∆ΩΜΑΤΙΥ 230V
∆ΙΚΤΥ ΗΛΕΚΤΡΙΚΗΣ
ΤΡΦ∆ΣΙΑΣ
ΑΣΦΑΛΕΙΑ
ΒΑΣΗ ΑΚΡ∆ΕΚΤΩΝ ΤΡΦ∆ΣΙΑΣ

Table of Contents

Related product manuals