EasyManua.ls Logo

CHIEF MI300T - Page 88

CHIEF MI300T
92 pages
Print Icon
To Next Page IconTo Next Page
To Next Page IconTo Next Page
To Previous Page IconTo Previous Page
To Previous Page IconTo Previous Page
Loading...
88
MI300T 220V
qj
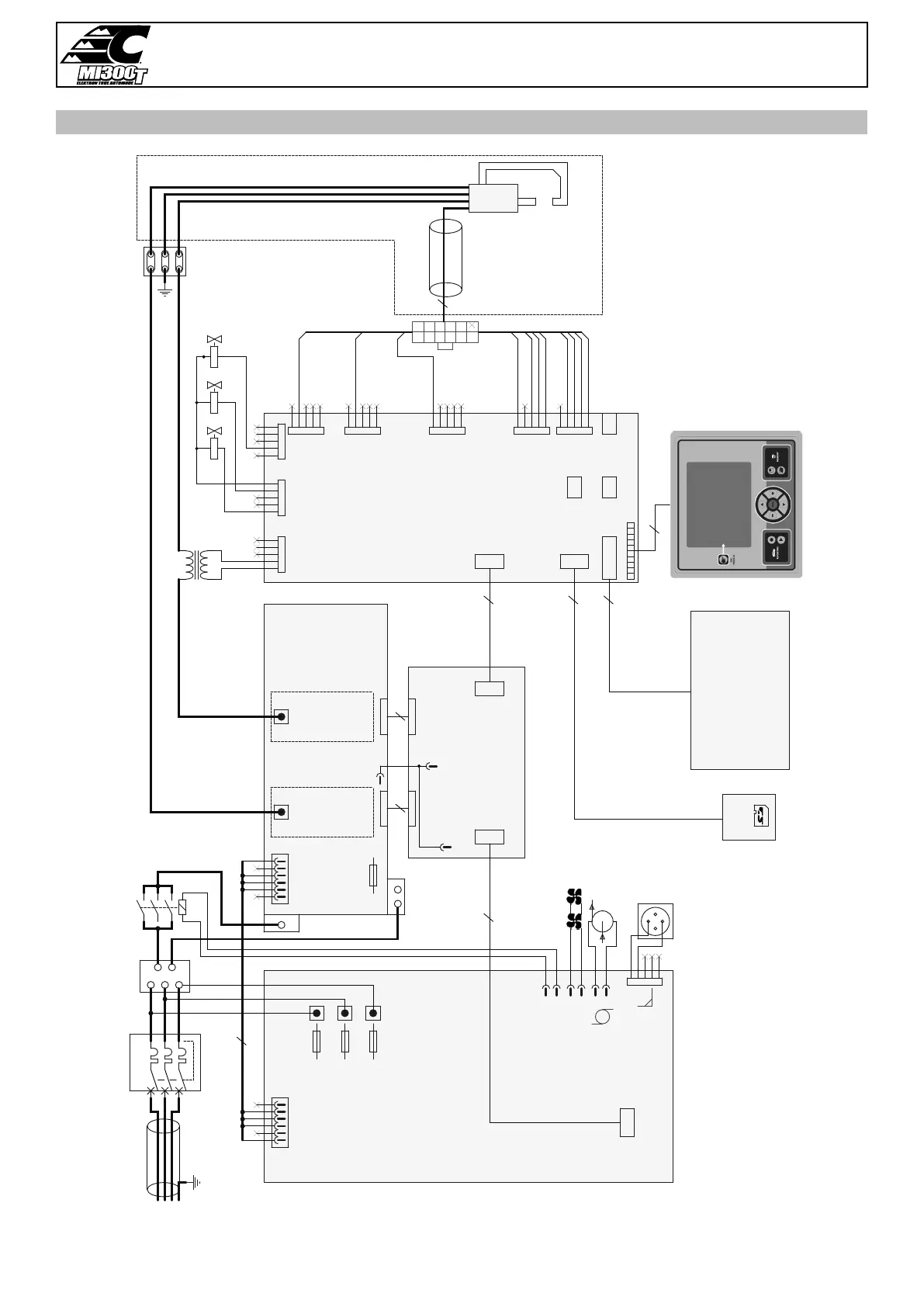
CIRCUIT DIAGRAM / ESQUEMAS ELÉCTRICOS / SCHÉMAS ÉLECTRIQUE
CGUN1 CGUN2
CGUN3
XGUN1
XGUN2
GUN SENSORS
SOLENOID1
SOLENOID2
U/I SENSE
POWER CARD
SD CARD
C GUN
NETWORK
71797 71824 71741
EV2 EV3 EV4
1
11
3
4
5
6
7
8
9
10
2
E0008
1
2
3
4
5
6
7
8
9
10
11
12
12x0.5mm²
51905
97028
22
8
10
11
E0006
E0002
1010
4 4
NC
NC
+HT
+HT
-HT
-HT
PM34 IGBT
PM34 IGBT
PM12 IGBT
PM12 IGBT
F4
F3
F2F1
51131
71876
51021
96019
51021
+
-
+
-
+
-
+
-
KMFAN
52194
4
52351
E0005
52200 52200
A0018
53100 53092
53095
51968
93910
51363
51363
51363
51409
WHITE
WHITE
WHITE
WHITE
BLUE
BLUE
BLUE
BLUE
BLACK
BLACK
RED
1
4
3
2
RED
WHITE
RED
BLACK
RED
BLACK
RED
BLACK
BLACK
GRAY
RED
BLACK
NC
NC

Related product manuals