EasyManua.ls Logo

CIAT microciat MRS2.2A - Remote Control and Relay Card Connection

CIAT microciat MRS2.2A
28 pages
Print Icon
To Next Page IconTo Next Page
To Next Page IconTo Next Page
To Previous Page IconTo Previous Page
To Previous Page IconTo Previous Page
Loading...
24
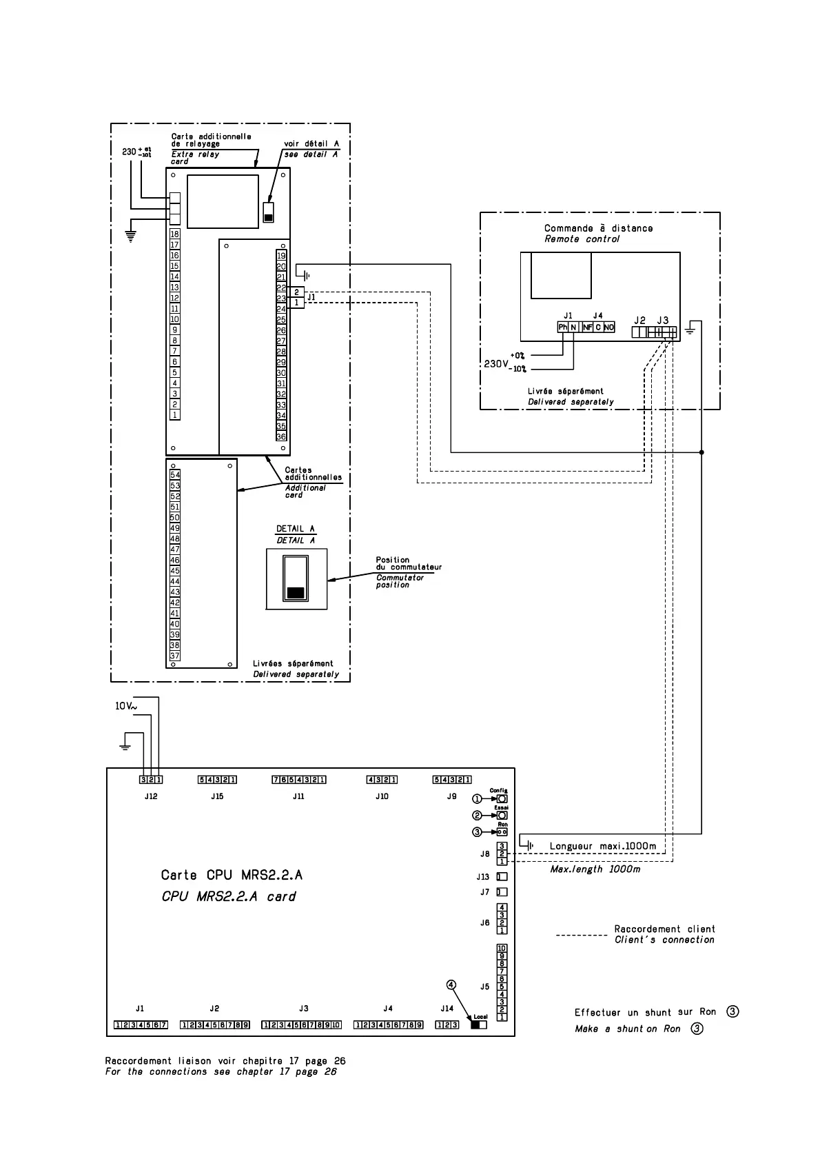
15  Raccordement de la com
mande électronique à distance
et de la carte de relayage
15  Remote electronic control
connection and relay card
connection
Raccordement : se reporter également au schéma électrique de
l’appareil.
Connections : refer also to electrical diagram of the unit.

Table of Contents

Related product manuals