EasyManua.ls Logo

Cisco UCS C220 M4 - Page 20

Cisco UCS C220 M4
72 pages
Print Icon
To Next Page IconTo Next Page
To Next Page IconTo Next Page
To Previous Page IconTo Previous Page
To Previous Page IconTo Previous Page
Loading...
3-20
Cisco UCS C220 M4 Server Installation and Service Guide
OL-32473-01
Chapter 3 Maintaining the Server
Installing or Replacing Server Components
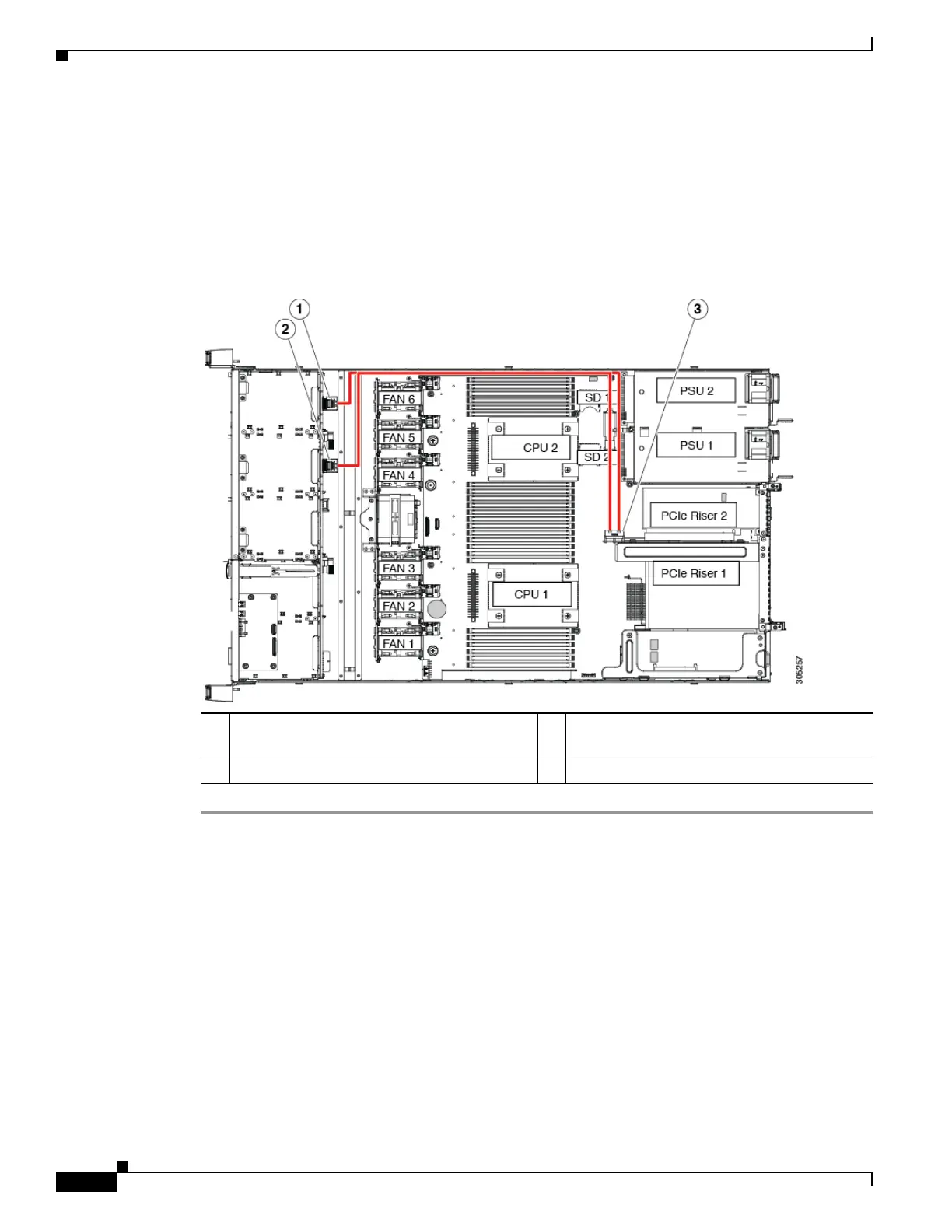
c. Connect the two ends of the cable to the PCIe connectors on the drive backplane.
Connect the cable labeled Port A to the Port A connector; connect the cable labeled Port B to the
Port B connector (see Figure 3-10).
Step 4 Replace the top cover.
Step 5 Replace the server in the rack, replace cables, and then power on the server by pressing the Power button.
Figure 3-10 PCIe Riser Version 2B Cabling to Drive Backplane
1 PCIe connector, Port A 3 Cable connector on PCIe riser 2B
(UCSC-PCI-2B-220M4)
2 PCIe connector, Port B

Table of Contents

Other manuals for Cisco UCS C220 M4

Related product manuals