EasyManua.ls Logo

ClimateMaster Tranquility TCV 048 - Functional Troubleshooting

ClimateMaster Tranquility TCV 048
84 pages
Print Icon
To Next Page IconTo Next Page
To Next Page IconTo Next Page
To Previous Page IconTo Previous Page
To Previous Page IconTo Previous Page
Loading...
ClimateMaster Water-Source Heat Pumps
78
CLIMATEMASTER WATER-SOURCE HEAT PUMPS
Tranquility
®
Compact (TC) Series
Rev.: July 7, 2020
Functional Troubleshooting
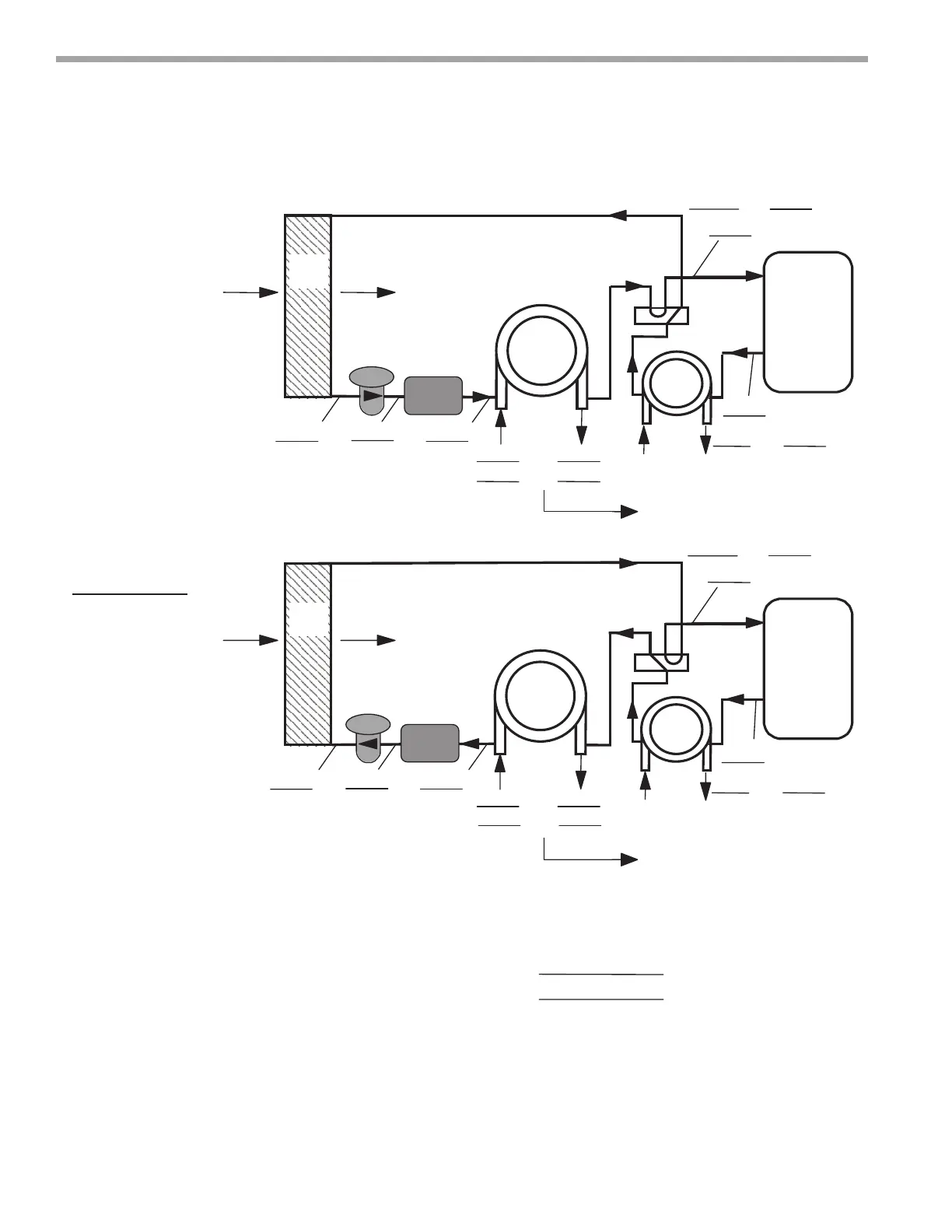
Packaged Unit Refrigeration Schematic
Rev. 12/08
Customer: _____________________________________
Antifreeze: ________________________
Model#: ________________________ Serial#: ________________ Loop type: _______________
Complaint: ________________________________________________________________________
COAX
COMPRESSOR
DISCHARGE
SUCTION
HWG
COOLING CYCLE ANALYSIS -
COAX
COMPRESSOR
DISCHARGE
SUCTION
HWG
HEATING CYCLE ANALYSIS -
PSI
SAT
PSI
SAT
°F
°F
AIR
COIL
°F °F
FP2: HEATING
LIQUID LINE
°F
EXPANSION
VALVE
AIR
COIL
°F °F
PSI
SAT
PSI
SAT
°F
°F
°F °F
WATER IN WATER OUT
PSI PSI
°F °F
WATER IN WATER OUT
PSI PSI
Use 500 for water, 485 for antifreeze.
FILTER
DRIER*
FLASH
GAS LINE
°F
FP1
SENSOR
°F
EXPANSION
VALVE
FILTER
DRIER*
FP2: FLASH
GAS LINE
°F
OTHER SIDE
OF FILTR DR
°F
FP1: CLG
LIQ LINE
°F
Refrigerant Type:
HFC-410A
Heat of Extraction (Absorption) or Heat of Rejection =
________ flow rate ( diff. ( factor = _____________
(Btu/hr)
Superheat
Subcooling
Suction temperature- suction saturation temp.
Discharge saturation temp.-liquid line temp.
=
=
=
=
(deg F)
(deg F)
gpm) x ________ temp. deg. F) x ________ fluid
Date: ________________________
Voltage: ________
Comp Amps: _______
Total Amps: ________
Location: ________________________
Model Number: ________________________
Serial Number: ________________________
Look up pressure drop in
I.O.M. or spec. catalog to
determine flow rate.
Look up pressure drop in
I.O.M. or spec. catalog to
determine flow rate.
Note: Never connect refrigerant gauges during startup procedures. Conduct water-side analysis using P/T ports
to determine water ow and temperature difference. If water-side analysis shows poor performance, refrigerant
troubleshooting may be required. Connect refrigerant gauges as a last resort.

Table of Contents

Related product manuals