EasyManua.ls Logo

ClimateMaster Tranquility TSH 070 - Model Nomenclature and Overview; Model Type Identification; Unit Size Codes

ClimateMaster Tranquility TSH 070
68 pages
Print Icon
To Next Page IconTo Next Page
To Next Page IconTo Next Page
To Previous Page IconTo Previous Page
To Previous Page IconTo Previous Page
Loading...
climatemaster.com
3
Tranquility
®
20 (TE) Series
Rev.: June 5, 2020
THE SMART SOLUTION FOR ENERGY EFFICIENCY
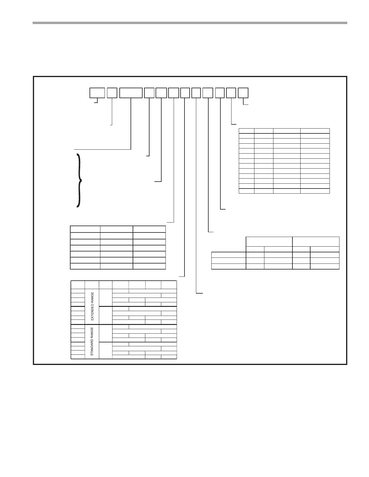
Model Nomenclature – General Overview
C0 2 4 CG 3 0 C L T
4 5 6 7
8
91011121314
Unit Size
Return Air
Voltage
Controls
Cabinet
Revision Level
Supply Air & Motor Option
TS
1 2
TS = Tranquility
®
20
Single Stage Scroll
(Rotary: Size 006-012)
Model Type
V
3
V = Vertical Upflow
Configuration
L = Left Return
R = Right Return
0 = None
Water Circuit Options
2 = HWG (Coil Only)
6 = HWG (Coil Only) w/Auto Flow Regulator 2.5 GPM/To n
7 = HWG (Coil Only) w/Auto Flow Regulator 3.0 GPM/Ton
8 = Auto Flow Regulator 2.5 GPM/Ton
9 = Auto Flow Regulator 3.0 GPM/Ton
S
15
S = Standard
Standard
H = Horizontal
D = Vertical Downflow
5 = Secondary Circulating Pump
Option Supply ConfigurationMotor
T
D
B
Top
Down
Back
TSV
TSD
TSH
PSC
PSC
PSC
SStraight TSH PSC
VTSV PSC Hi Static
UTSD
YTSH
ZTSH
Top
Down
Back
Straight
K TSV ECM
N TSD ECM
P TSH ECM
W TSH ECM
Top
Down
Back
Straight
PSC Hi Static
PSC Hi Static
PSC Hi Static
Heat Exchanger Options
CXM
DXM2
CXM w/LON
DXM2 w/LON
CXM w/MPC
DXM2 w/MPC
Control w/o Disconnect w/ Disconnect
C
D
L
M
N
P
A
B
E
K
R
S
Standard
ClimaDry
®
Reheat
Non Coated Air Coil
Copper Cupro-Nickel Copper Cupro-Nickel
C
E
N
P
A
D
J
F
Motorized Valve
TS
UW
G = 208/230/60/1
H = 208/230/60/3
* N/A for Sizes 006-012
E = 265/60/1
N = 575/60/3
F = 460/60/3
AVAILABLE
VOLTAGES
006 - E,G
009 - E,G
012 - E,G
018 - E,G
024 - E,F,G,H
030 - E,F,G,H
036 - E,F,G,H
042 - E,F,G,H,N
048 - E,F,G,H,N
060 - E,F,G,H,N
070 - F,G,H,N
OPTION
1
A
J
K
2
C
L
M
3
E
N
P
1” FILTER
RAIL
RANGE
ULTRA
QUIET
2” FILTER
RAIL
1” FILTER
FRAME
2” FILTER
FRAME
4
G
R
S
NO
YES
NO
YES
YES
YES
YES
YES
NO
NO
NO
NO
NO
NO
YES
YES
YES
YES
NO
NO
NO
NO
NO
NO
YES
YES
YES
YES
NO
NO
NO
NO
NO
NO
YES
YES
YES
YES
NO
NO
NO
NO
NO
NO
ClimaDry
®
reheat coil not coated
*Microchannel On Sizes 024-048
ClimaDry
®
units are equiped with DMX2
A = Current Revision Sizes 006-012
B = Current Revision Sizes 018
C = Current Revision Sizes 024-070
Tin Plated Air Coil /
Microchannel Air Coil*
*
*
*
*
*
*
*
*
Note: Above model nomenclature is a general reference. Consult individual engineering guides for detailed information.
ClimaDry
®
II Option Notes:
1. Unit must have DXM2 control option. 460 volt unit units require a four wire power supply with neutral.
2. ClimaDry
®
II may not be combined with motorized water valve, internal secondary circulating pump, or automatic
ow regulator options.
3. Unit minimum entering air temperature while in the dehumidication, cooling, or continuous fan modes is
65ºF DB/55ºF WB. Operation below this minimum may result in nuisance faults.
4. A thermostat with dehumidication mode or thermostat and separate humidistat/dehumidistat is required for
activation and control of ClimaDry II.
5. Downow and 575 volt units are not eligible for ClimaDry II.

Related product manuals