EasyManua.ls Logo

ClimateMaster Tranquility TSH 070 - Page 37

ClimateMaster Tranquility TSH 070
68 pages
Print Icon
To Next Page IconTo Next Page
To Next Page IconTo Next Page
To Previous Page IconTo Previous Page
To Previous Page IconTo Previous Page
Loading...
climatemaster.com
37
Tranquility
®
20 (TE) Series
Rev.: June 5, 2020
THE SMART SOLUTION FOR ENERGY EFFICIENCY
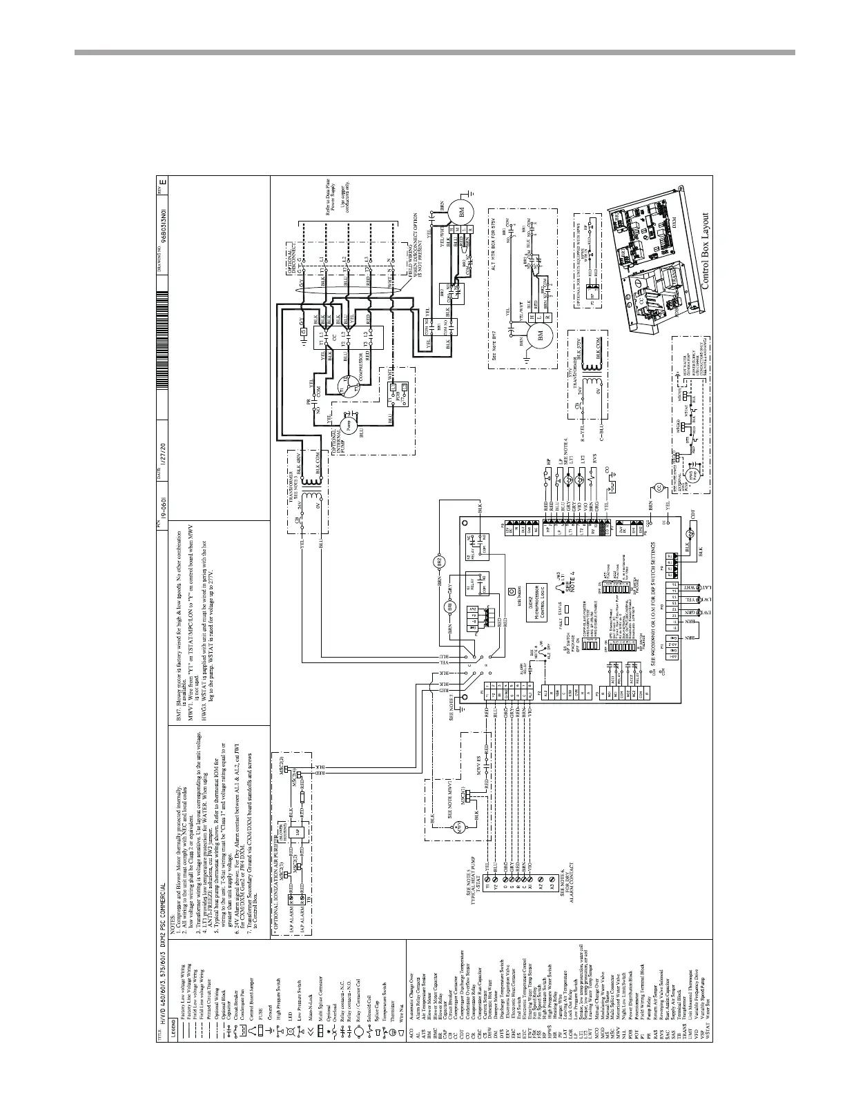
Typical Wiring Diagram – Units with DXM2 Board and PSC Fan Motor
(Three Phase)

Related product manuals