EasyManua.ls Logo

CLIVET ELFORoom2 003.0

CLIVET ELFORoom2 003.0
316 pages
Go to English
To Next Page IconTo Next Page
To Next Page IconTo Next Page
To Previous Page IconTo Previous Page
To Previous Page IconTo Previous Page
Loading...
10v = ventilateur à 1400 rpm
1v = ventilateur 450 rpm
<1v = ventilateur off
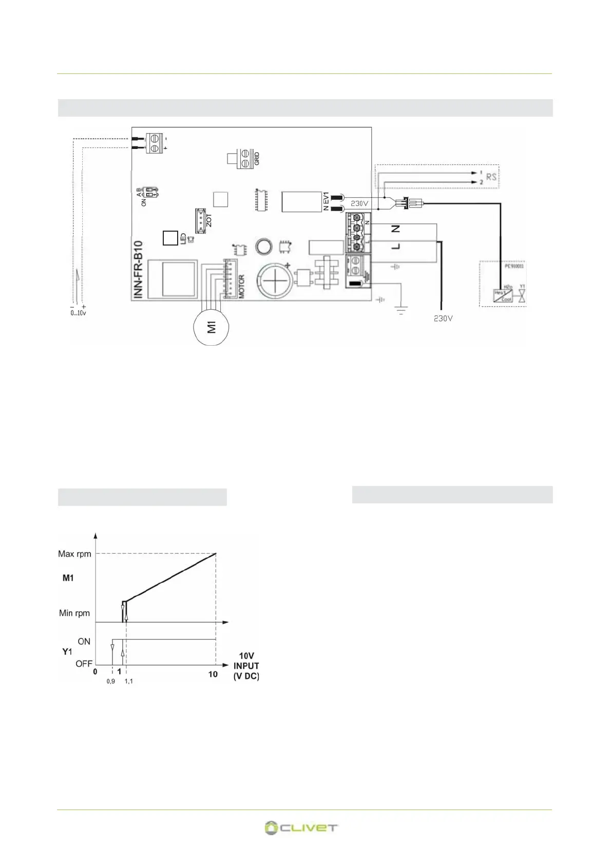
5 - RACCORDEMENTS ELECTRIQUES
SC010 - Modulation du ventilateur 0-10V - installation 2 tubes
Modulation du ventilateur
Y1 Électrovalve eau (Chauffage/ Refroidissement) RS Option plancher (page 122)
Modulation du ventilateur
(impédance d'entrée 25k)
M1 = moteur
2 tubes
Vitesse ventilateur
L’entrée 10 V, si l'entrée S1 à laquelle est connecté le micro-interrupteur de sécurité de la grille est fermée, active l'électrovanne Y1 et
règle le nombre de tours du ventilateur
La « rampe » de vitesse prévoit une régulation linéaire de la valeur minimale (400 tr/min) à la valeur maximale (1 400 tr/min) pour des
valeurs de tension 1,1 V÷10 VCC.
Le moteur est éteint pour les valeurs inférieures à 1 VCC.
L'électrovanne Y1 est activée pour les valeurs de tension 1 VCC et s'éteint lorsque celle-ci descend sous 0,9 VCC.
Sens de la DEL / alarmes
La DEL (A) est éteinte si le signal d'entrée est inférieur
à 0,9 V.
Est allumée pour les valeurs supérieures à 1 V et
signale le fonctionnement normal.
- Clignote fréquemment en cas d'actionnement du
micro-interrupteur de sécurité de la grille S1 dû à
l'opération de nettoyage du filtre.
- 2 lampeggi + pausa per allarme motore (ad esem-
pio inceppamento dovuto a corpi estranei o guasto
del sensore di rotazione).
A
115

Other manuals for CLIVET ELFORoom2 003.0

Related product manuals