EasyManua.ls Logo

CLIVET ELFORoom2 003.0 - 5.6 Room Thermostat On-Board Connection

CLIVET ELFORoom2 003.0
Print Icon
To Next Page IconTo Next Page
To Next Page IconTo Next Page
To Previous Page IconTo Previous Page
To Previous Page IconTo Previous Page
Loading...
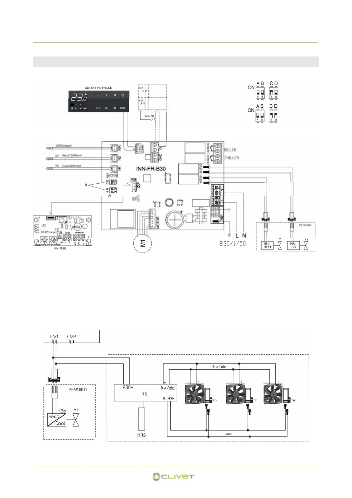
5 - COLLEGAMENTI ELETTRICI
5.6 Collegamento con termostato a bordo
BOILER uscita consenso riscaldamento (boiler-caldaia)
contatto pulito max 1A
CHILLER uscita consenso raffreddamento (chiller)
contatto pulito max 1A
CP ON / OFF remoto
H2 sonda temperatura acqua (10k)
(4Tubi ĺ riscaldamento)
(2Tubi ĺ raffreddamento / riscaldamento)
H4 sonda temperatura acqua (10k)
(4Tubi ĺ raffreddamento)
Y1 Elettrovalvola acqua (4Tubi ĺ riscaldamento)
(2Tubi ĺ riscaldamento / raffreddamento)
Y2 Elettrovalvola acqua (4Tubi ĺ raffreddamento)
AIR Sonda temperatura aria (10k)
4 tubi : Y1 + Y2
2 tubi : Y1
Opzione radiante
Solo 2 tubi
Gr. 003.0 = n°1
4 tubi
Unità in
OFF
Unità in
ON
M1 = motore
2 tubi
Gr. 015.0 - 017.0 = n°3
Gr. 005.0 - 011.0 = n°2
HRS - sonda temperatura acqua (10k)
A - posizione dip-switch
Versione 2 tubi
Versione 4 tubi
18

Other manuals for CLIVET ELFORoom2 003.0

Related product manuals