EasyManua.ls Logo

CLIVET ELFORoom2 003.0 - SC010 0-10 V Modulating Fan Connection

CLIVET ELFORoom2 003.0
Print Icon
To Next Page IconTo Next Page
To Next Page IconTo Next Page
To Previous Page IconTo Previous Page
To Previous Page IconTo Previous Page
Loading...
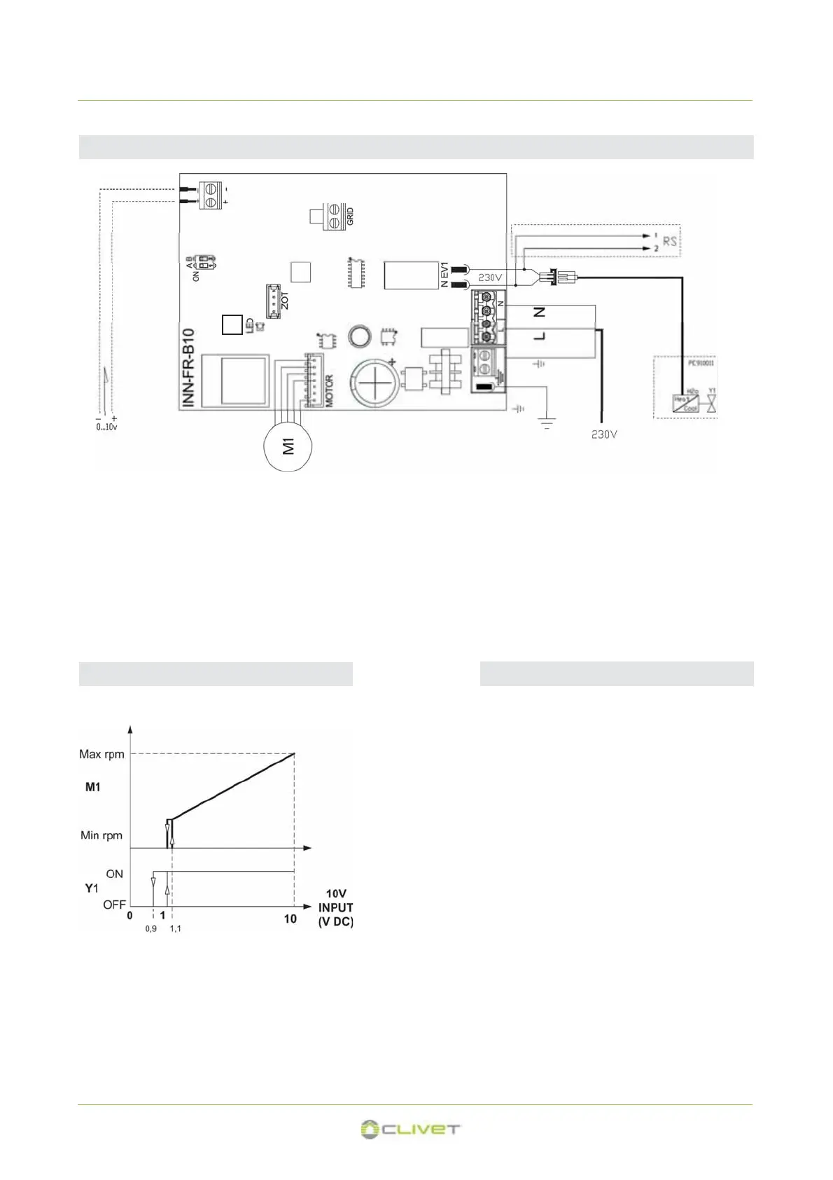
5 - COLLEGAMENTI ELETTRICI
SC010 - Modulazione ventilatore 0-10V - impianto 2 tubi
10v = ventilatore 1400 rpm
1v = ventilatore 450 rpm
<1v = ventilatore off
Modulazione ventilatore
Y1 Elettrovalvola acqua (riscaldamento/raffreddamento) RS Opzione radiante (pag.26)
Modulazione ventilatore
(impedenza ingresso 25
k)
2 tubi
Velocità ventilatore
L’ingresso 10 V, se l’ingresso S1 a cui è connesso il microinterruttore di sicurezza griglia risulta chiuso attiva l'elettrovalvola Y1 e regola
il numero di giri del ventilatore.
La “rampa” di velocità prevede una regolazione lineare dal valore minimo (400 rpm) a quello massimo (1.400 rpm) per valori di tensione
1,1V÷10 V DC. Il motore è spento per valori inferiori ad 1 V DC.
Il motore è spento per valori inferiori ad 1 V DC.
L'elettrovalvola Y1 viene attivata per valori di tensione > 1 V DC e si spegne quando la stessa scende sotto 0,9 V DC.
Significato LED / allarmi
Il LED (A) è spento se il segnale di ingresso è inferiore
a 0,9 V.
Viene acceso per valori maggiori di 1 V e segnala il
funzionamento normale.
- Lampeggia frequentemente in caso di azionamen-
to del microinterruttore di sicurezza griglia S1
dovuto all'operazione di pulizia del filtro.
- 2 lampeggi + pausa per allarme motore (ad esem-
pio inceppamento dovuto a corpi estranei o guasto
del sensore di rotazione).
M1 = motore
A
25

Other manuals for CLIVET ELFORoom2 003.0

Related product manuals