EasyManua.ls Logo

CLIVET ELFORoom2 003.0 - Page 63

CLIVET ELFORoom2 003.0
316 pages
Go to English
To Next Page IconTo Next Page
To Next Page IconTo Next Page
To Previous Page IconTo Previous Page
To Previous Page IconTo Previous Page
Loading...
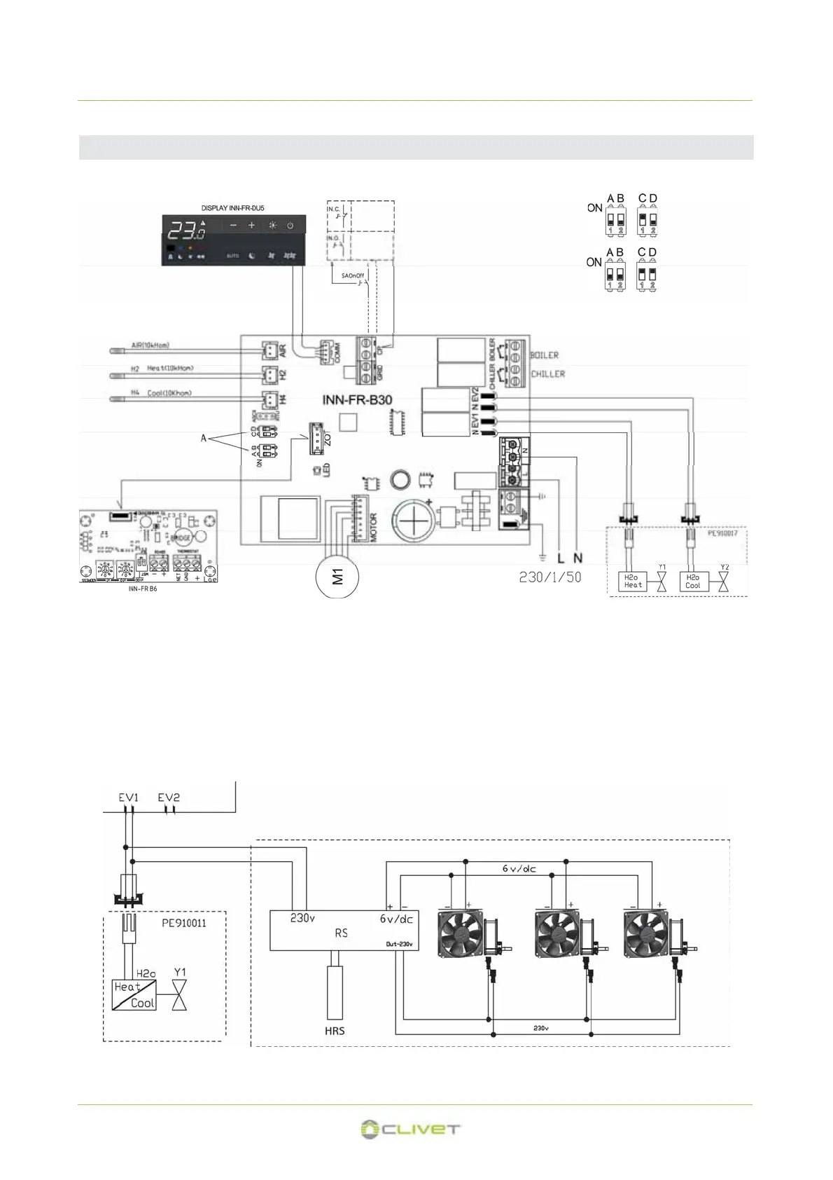
4 pipes
M1 = motor
5 - ELECTRICAL CONNECTIONS
5.6 Connection with room thermostat mounted on- board
BOILER Heating go-ahead output (boiler-caldaia)
free contact max 1A
CHILLER Cooling go-ahead output (chiller)
free contact max 1A
CP Remote ON / OFF
H2 Water temperature probe (10k)
(4 Pipes ĺ heating)
(2 Pipes ĺ cooling / heating)
H4 Water temperature probe (10k)
(4 Pipes ĺ cooling)
Y1 Water solenoid valve (4 Pipes ĺ heating)
(2 Pipes ĺ heating / cooling)
Y2 Water solenoid valve (4 Pipes ĺ cooling)
AIR Air temperature probe (10k)
4 Pipes : Y1 + Y2
2 Pipes : Y1
Radiant optional
Only 2 pipes
Gr. 003.0 = n°1
2 pipes
Gr. 015.0 - 017.0 = n°3
Gr. 005.0 - 011.0 = n°2
HRS - Water temperature probe (10k)
OFF unit
ON unit
A - dip-switch position
2 pipes version
4 pipes version
63

Other manuals for CLIVET ELFORoom2 003.0

Related product manuals