EasyManua.ls Logo

CLIVET ELFORoom2 003.0 - Page 70

CLIVET ELFORoom2 003.0
316 pages
Go to English
To Next Page IconTo Next Page
To Next Page IconTo Next Page
To Previous Page IconTo Previous Page
To Previous Page IconTo Previous Page
Loading...
5 - ELECTRICAL CONNECTIONS
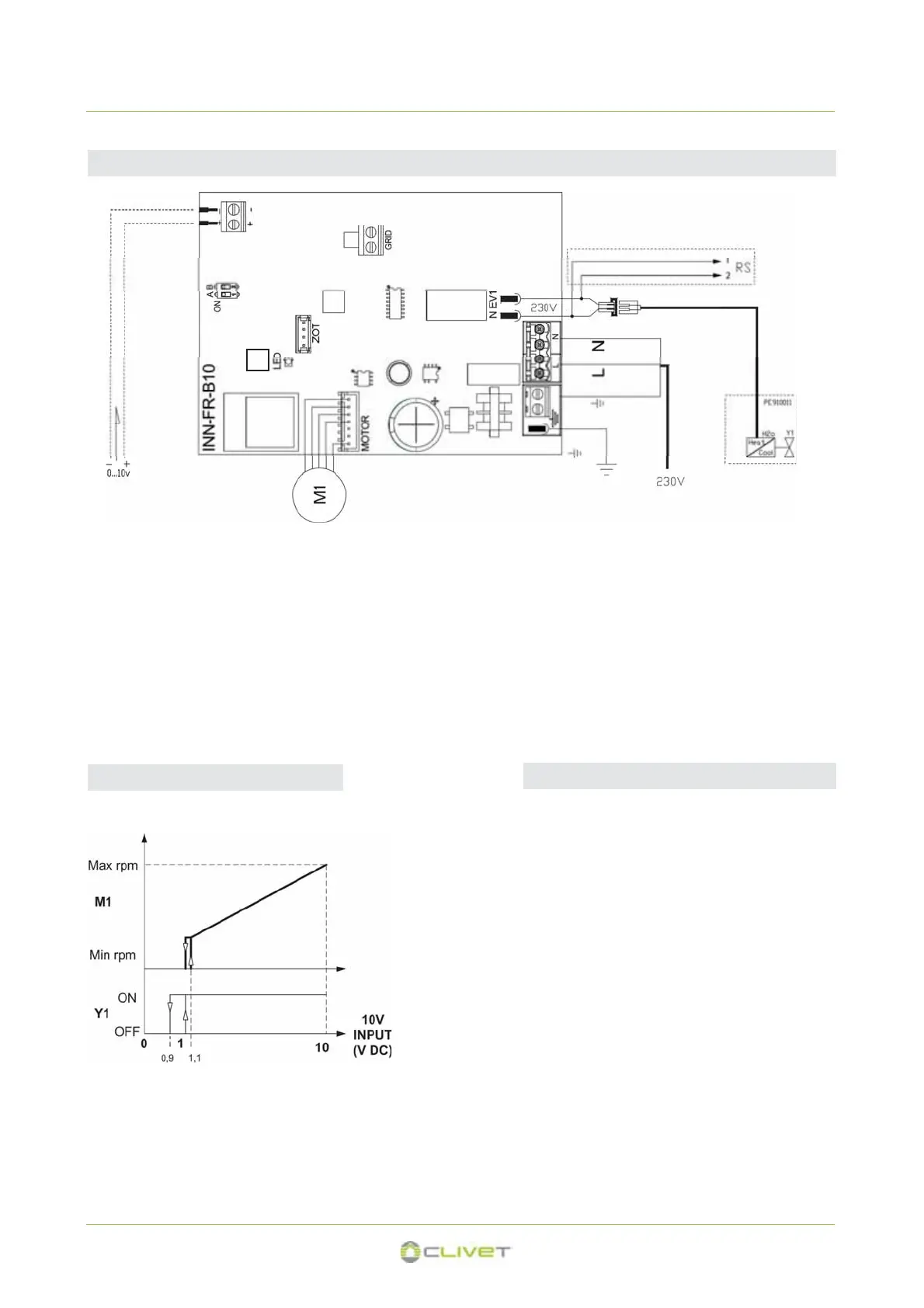
SC010 - 0-10V modulating fan - 2 pipe system
10v = fan 1400 rpm
1v = fan 450 rpm
<1v = fan off
Fan modulation
Y1 Water solenoid valve(heating/cooling) RS Radiant optional (page.74)
Fan modulation
(input impendance 25k)
M1 = motor
2 pipes
Fan speed
If the S1 input to which the grille safety micro-switch is connected is closed, the 10 V input activates the Y1 solenoid valve and adjusts
the speed of the fan.
The speed “ramp” provides for linear adjustment from the minimum speed (400 RPM) to the maximum (1,400 RPM) with voltages
1.1V - 10 V DC.
The motor is switched off for values less than 1 V DC.
The Y1 solenoid valve is activated for voltages > 1 V DC and is switched off when it falls below 0.9 V DC.
LED meaning / alarms
The LED (A) is off if the input signal is lower than 0.9 V.
It is switched on for values greater than 1 V and indica-
tes normal operation.
- It flashes frequently if the S1 grille safety micro-
switch is activated due to filter cleaning operations.
- 2 flashes + pause for motor alarm (for example,
jamming due to foreign bodies, fault in the rotation
sensor).
A
70

Other manuals for CLIVET ELFORoom2 003.0

Related product manuals