EasyManua.ls Logo

CLIVET WSAT-SC 165F Series - Dimensions

CLIVET WSAT-SC 165F Series
50 pages
Print Icon
To Next Page IconTo Next Page
To Next Page IconTo Next Page
To Previous Page IconTo Previous Page
To Previous Page IconTo Previous Page
Loading...
M01W45H6-06
WSAT-SC
75C-180F
- POSITIONING -
18
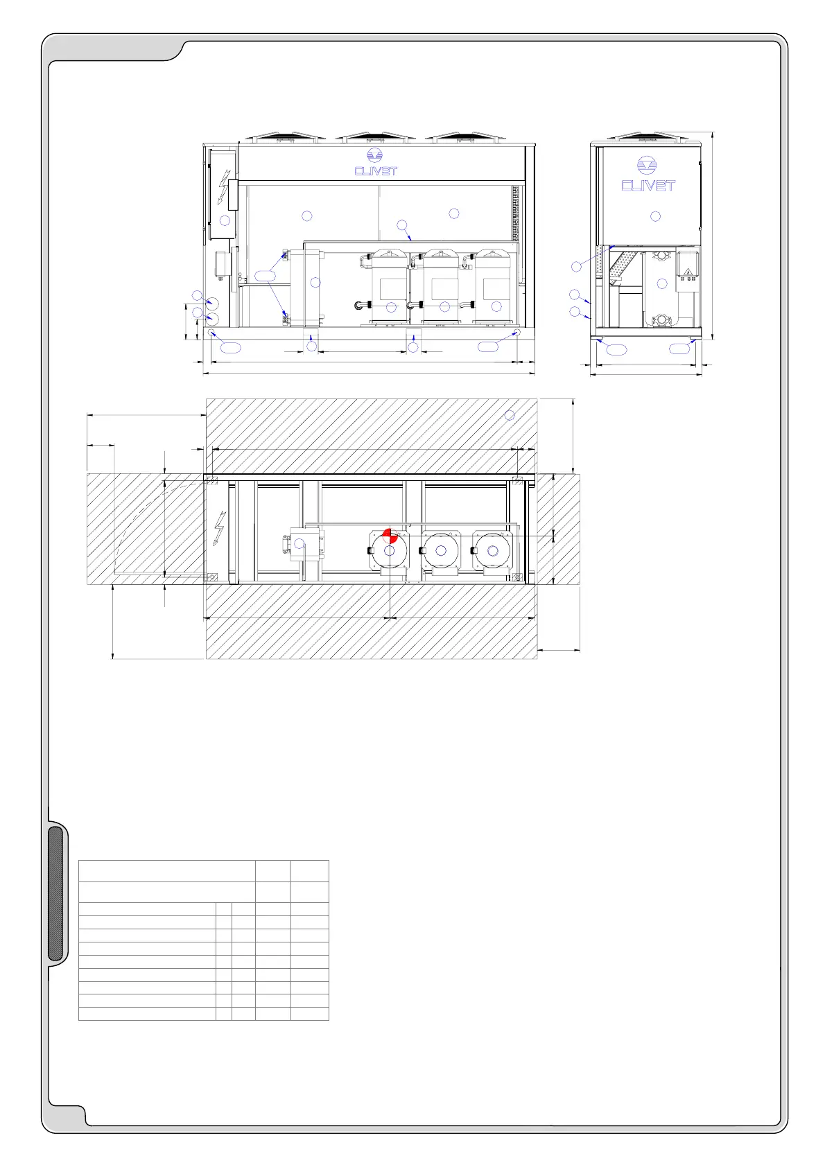
DIMENSIONS
Sizes 75C
O
P
N
175
3250
175
1600
(15)
1
5
0
0
(
1
4
)
700
(13)
M
2990
9
7
7
W3
5
9
2
W1
5
9
85
1 1
W4
1
"G"
W2
16
2990
861
OD
4-5
3
5
0
2
0
0
85
11
10
148
6
2
7
3
148
6
1
4-5
1
1
9
3
700
(12)
1
5
0
0
(
1
4
)
2
0
3
0
8
1095
977
4-5
59
11
10
59
4-5
2
7
(1) COMPRESSOR
(2) INTERNAL EXCHANGER
(3) EXTERNAL EXCHANGER
(4) HOLE TO HANG UNIT
(5) LIFTING HOLES
(6) LIFTING LUGS
(7) ELECTRICAL PANEL
(8) POWER INPUT
(9) SOUNDPROOFED CABIN
(10) INTERNAL EXCHANGER WATER OUTLET
(11) INTERNAL EXCHANGER WATER INLET
(12) MINIMUM DIMENSION FOR A SAFE PASSAGE.
(13) MINIMUM DIMENSION FOR A SAFE PASSAGE WHEN THE DOOR OF
THE ELECTRICAL SWITCHBOARD
IS OPEN.
(14) MINIMUM DIMENSION FOR A PROPER AIR FLOW TO THE
CONDENSER COIL.
(15) MINIMUM DIMENSION ON THE ELECTRICAL SWITCHBOARD SIDE.
(16) CLEARANCE ACCESS RECOMMENDED
(G) BARYCENTRE
SC EN
SIZES 75C 75C
M mm 1754 1757
N mm 1496 1493
O mm 568 570
P mm 527 525
OD mm 89 89
W1 kg 379 381
W2 kg 479 483
W3 kg 412 418
W4 kg 521 530
Weight referred to standard unit; according to the considered accessories unit weight can noticeably change.

Related product manuals