EasyManua.ls Logo

CombiLift C2500 - Steering & Hydraulic Functions Circuit

Default Icon
150 pages
Print Icon
To Next Page IconTo Next Page
To Next Page IconTo Next Page
To Previous Page IconTo Previous Page
To Previous Page IconTo Previous Page
Loading...
Appendices
143
C3M2-OM-EN-02
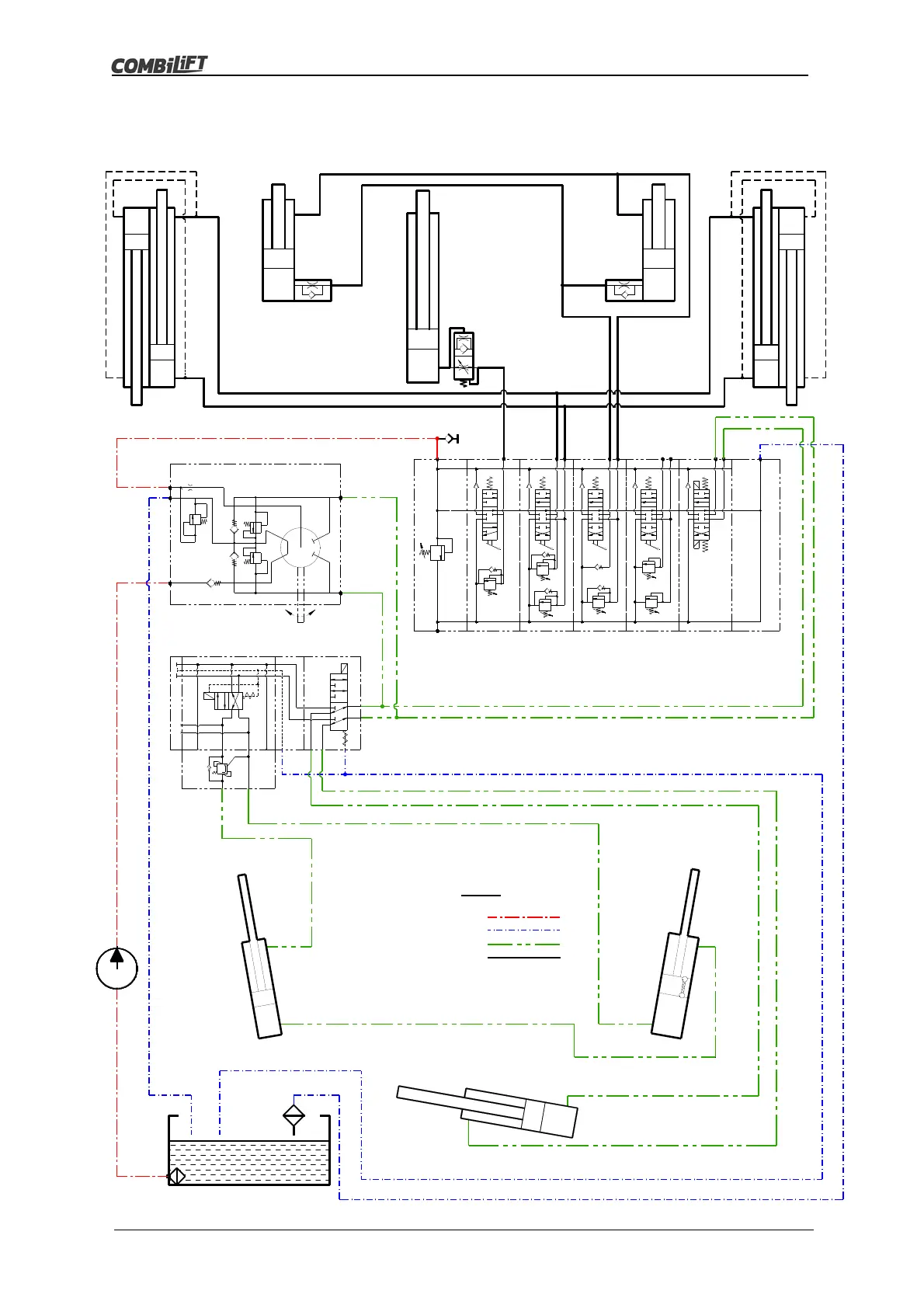
7.3 Steering & Hydraulic Functions Circuit
RH CARRIAGE CYL I NDER
ONE WAY
RE ST RI CT O R
TILT CYLINDER
RE ST RI CT O R
ONE WAY
180Bar
180Bar
221Bar
1
2
0
T
T
T
1
2
0
111Bar
1
2
0
111Bar
0
2
1
P
E
P
242Bar
180Bar
0
2
1
LH CARRIAGE CYLINDER
LIFT CYLINDER
TILT CYLINDER
LH STEERING CYLINDER
PRI M I NG VAL V E
IN PISTON
RH STEERING CYLINDER
REAR STEERING CYLINDER
G EAR PU M P
R
L
P
T
EF
STEERING MOTOR
A1 A2 A3 A4 A5B2 B3 B4 B5
I NL ET LI FT RE ACH TI L T AUXI L I ARY M O DEOUTLET
PRESSURE
TEST PO I NT
A ' s Represent B ack Of Valve
B ' s R epresent Front Of V alve
Legend
Feed From P ump
Return To Tank (B leed)
S teering Lines
Hydraulic Functions
Return Filter
25 Micron
90 Micron (In-Tank)
S trainer Filter
P1
AB
PT
P1
P2
C1
C2
C4
C3
P2
C2 C1
C3 Y2C2Y1
Y
STEERING VALVE
HO S E BURST
CHECK VAL VE
O N M AST & I N ALL
M AST CYLI NDERS

Table of Contents

Related product manuals